Toggle navigation
(+356) 2164 9500
(+356) 9998 6779
info@sensaramalta.com
Head Office - Sensara Malta
Triq Santa Marija, Safi
09.00 to 19.00 hrs
Monday to Saturday
Home
Properties
Sales
Rentals
Foreign
About us
Services
Contacts
Send your request
Previous
Next
1,450,000 €
CLICK HERE for DETAILED PHOTOS
Attard- 3 Bedroom Villa + Back Garden
Villa for sale • Attard
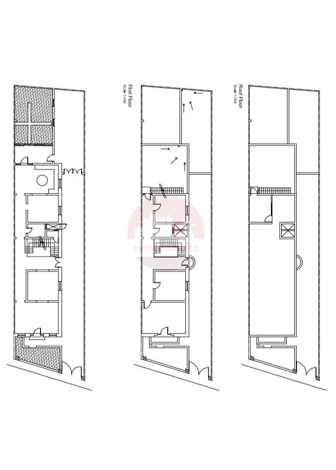
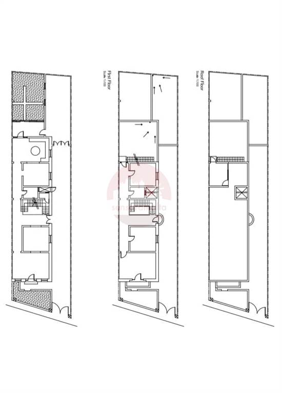
ATTARD - DETACHED Villa Set on a plot area approx 10m x 130m , In an excellent residential area in Misrah Kola.
The Property Consists of an entrance hall, separate sitting room, guest toilet, kitchen /living / Dining and Back Garden .
On The First Floor One Finds three large Bedrooms, Two with veranda , and a main bathroom.
On the second floor finds full Roof And washroom.
THE Property Enjoys an interconnecting 2 cars Street Level Garage and large enough for 6 cars Drive Way.
Freehold!!!.
Rooms and Features
Code
V013363
Locality
Attard
Property type
Villa
Price
1,450,000 €
Locals
1
Bathrooms
2
Sqm
375
Garages
1
Terraces
2
Energetic class
Nondescript
Photos • Floorplans • Video
Photos
Options
Print Property sheet
Send property sheet by mail
Schedule a visit
RealEstate Brokers
Cortis Marika
+356 9925 6579
+356 9998 6779
+356 9998 6775
cortis@sensaramalta.com
Information request
Name *
Phone *
E-mail *
Request Details *
I authorize the processing of my personal data according Regolamento UE n. 679/2016 -
Privacy Policy
I authorize the processing of data for marketing purposes, promotional activities, commercial offers and market surveys.
Send
Share on
We also recommend
for Sale
Mellieha - Fully Detached Villa + Pool + Garage
1,825,000 €
for Sale
Mellieha - Luxury Villa with pool + country views
2,750,000 €
for Sale
Gharb -Brand New Fully Detached Villa+Pool + Views
3,100,000 €
Keep default settings X
Use of cookies
This site uses cookies. Our (own) cookies and those of our Partners (third party cookies) are used to offer you a unique experience with us. For this reason, together with our partners, we collect and process non-sensitive information (such as the identifier of your device or the pages you visit).
At any time you can delete, modify or verify the information you share in
Cookie preference
or in our
Cookie Policy
and
Privacy Policy
.
Necessary
Functional
Profiling
Analytics
Accept all
Decline all
Accept selected
Cookie preference