Toggle navigation
(+356) 2164 9500
(+356) 9998 6779
info@sensaramalta.com
Head Office - Sensara Malta
Triq Santa Marija, Safi
09.00 to 19.00 hrs
Monday to Saturday
Home
Properties
Sales
Rentals
Foreign
About us
Services
Contacts
Send your request
Previous
Next
538,000 €
CLICK HERE for DETAILED PHOTOS
Qormi- House Of Character + pool + Garage
House of Character for sale • Qormi
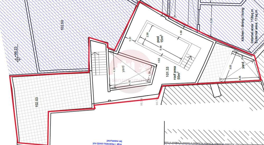
Currently on plan with permits already approved comes this 3-bedroom house of character which includes an interconnected circa 2-car garage and it is being offered in shell form.
The property consists of a welcoming hall, central courtyard, back kitchen living dining room and internal yard, guest bathroom, and a back interconnected garage.
1st floor, 3 bedrooms main served with ensuite and the 3rd one served with balcony and main bathroom.
2nd floor front roof terrace, and back deck with pool area and back terrace.
Freehold
Rooms and Features
Code
V016647
Locality
Qormi
Property type
House of Character
Price
538,000 €
Locals
1
Bedrooms
3
Bathrooms
3
Sqm
1
Garages
1
Balconies
1
Energetic class
Nondescript
Photos • Floorplans • Video
Photos
Options
Print Property sheet
Send property sheet by mail
Schedule a visit
RealEstate Brokers
Schembri Maria Pawla
+356 7732 8183
+356 9998 6779
+356 9998 6775
pawla@sensaramalta.com
Information request
Name *
Phone *
E-mail *
Request Details *
I authorize the processing of my personal data according Regolamento UE n. 679/2016 -
Privacy Policy
I authorize the processing of data for marketing purposes, promotional activities, commercial offers and market surveys.
Send
Share on
We also recommend
for Sale
Mqabba - Beautiful HOC + Garden + 640 sqms
860,000 €
for Sale
Zurrieq - Converted 2 Bedroom House Of Character
461,000 €
for Sale
Qrendi - House of Character + Field
1,536,000 €
Keep default settings X
Use of cookies
This site uses cookies. Our (own) cookies and those of our Partners (third party cookies) are used to offer you a unique experience with us. For this reason, together with our partners, we collect and process non-sensitive information (such as the identifier of your device or the pages you visit).
At any time you can delete, modify or verify the information you share in
Cookie preference
or in our
Cookie Policy
and
Privacy Policy
.
Necessary
Functional
Profiling
Analytics
Accept all
Decline all
Accept selected
Cookie preference