Toggle navigation
(+356) 2164 9500
(+356) 9998 6779
info@sensaramalta.com
Head Office - Sensara Malta
Triq Santa Marija, Safi
09.00 to 19.00 hrs
Monday to Saturday
Home
Properties
Sales
Rentals
Foreign
About us
Services
Contacts
Send your request
Previous
Next
430,000 €
CLICK HERE for DETAILED PHOTOS
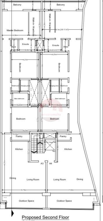
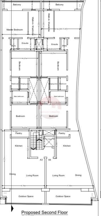
Luqa - 2nd Floor 3 bedroom Apartment - Finished
3+ bedroom apartment for sale • Luqa
FURTHER REDUCTION IN PRICE FOR SENSARA MALTA CLIENTS
In a New Development, comes this three bedroom apartment, set on the second floor, served with lift. Layout consists of an open plan with pantry and overlooking a balcony, spare bedroom, main bathroom, box room, another bedroom and yet another storage room. At the end of the property, one finds the main bedroom with en-suite, walk-in wardrobe and balcony.
This one of a kind apartment is being sold finished excluding bathrooms and internal doors.
Viewing highly recommended!
Rooms and Features
Code
V019051
Locality
Luqa
Property type
3+ bedroom apartment
Price
430,000 €
Locals
1
Bedrooms
3
Bathrooms
2
Sqm
198
Balconies
2
Energetic class
Not applicable
Photos • Floorplans • Video
Photos
Options
Print Property sheet
Send property sheet by mail
Schedule a visit
RealEstate Brokers
Jenkins Rita
+356 7712 7772
+356 9998 6779
+356 9998 6775
rita@sensaramalta.com
Information request
Name *
Phone *
E-mail *
Request Details *
I authorize the processing of my personal data according Regolamento UE n. 679/2016 -
Privacy Policy
I authorize the processing of data for marketing purposes, promotional activities, commercial offers and market surveys.
Send
Share on
We also recommend
for Sale
Zebbug - 4 Bedroom Apt + Roof + Half Airspace
317,000 €
for Sale
Lija - 3 Bedroom Finished Apartment
434,000 €
for Sale
Mosta, Already Built ** Finished 3 Bedroom Apartment with optional Garages
384,000 €
Keep default settings X
Use of cookies
This site uses cookies. Our (own) cookies and those of our Partners (third party cookies) are used to offer you a unique experience with us. For this reason, together with our partners, we collect and process non-sensitive information (such as the identifier of your device or the pages you visit).
At any time you can delete, modify or verify the information you share in
Cookie preference
or in our
Cookie Policy
and
Privacy Policy
.
Necessary
Functional
Profiling
Analytics
Accept all
Decline all
Accept selected
Cookie preference