Toggle navigation
(+356) 2164 9500
(+356) 9998 6779
info@sensaramalta.com
Head Office - Sensara Malta
Triq Santa Marija, Safi
09.00 to 19.00 hrs
Monday to Saturday
Home
Properties
Sales
Rentals
Foreign
About us
Services
Contacts
Send your request
Previous
Next
564,000 €
CLICK HERE for DETAILED PHOTOS
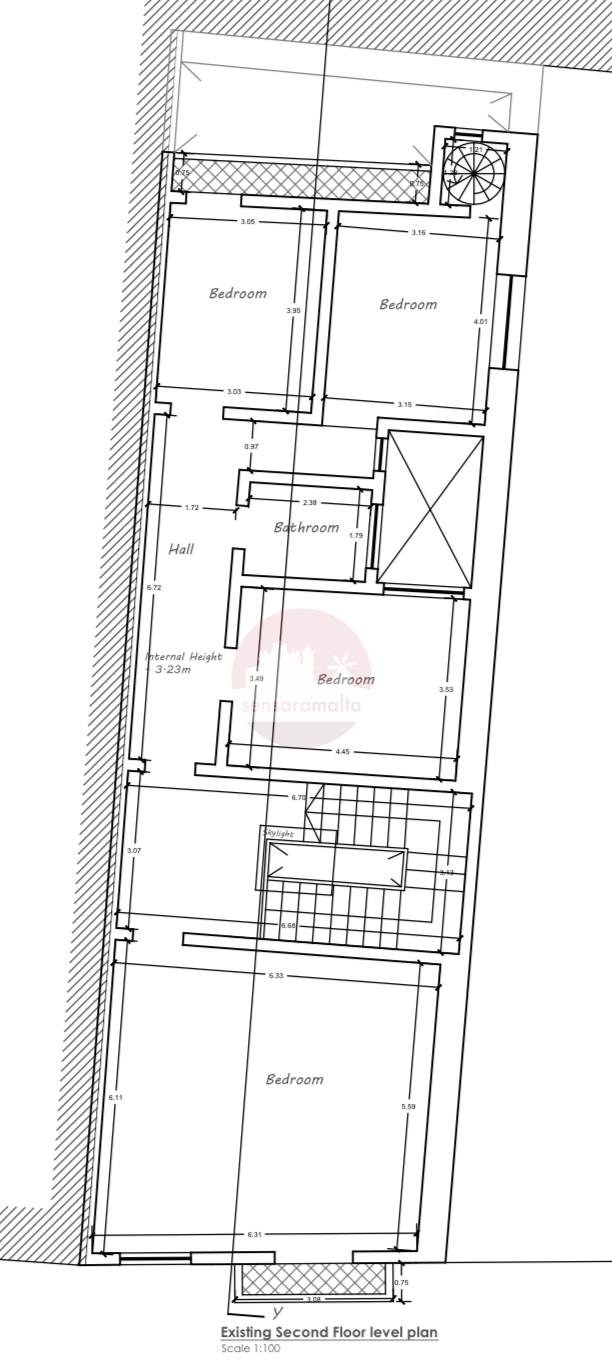
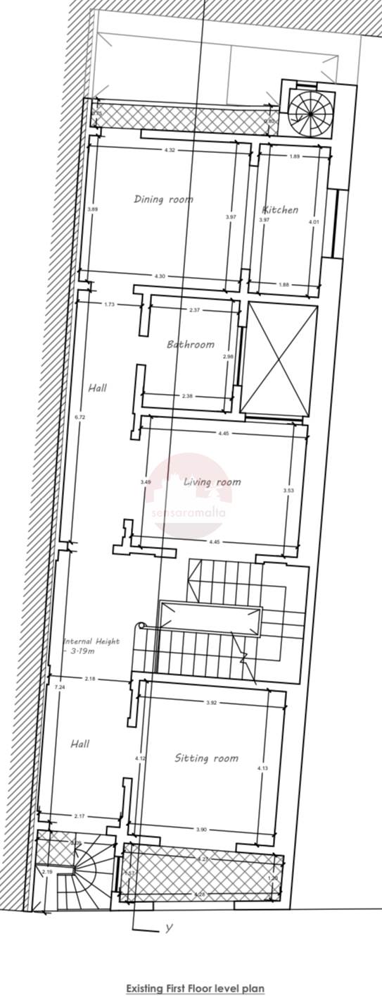
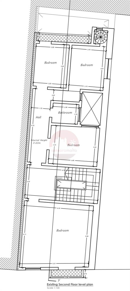
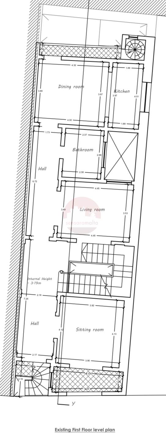
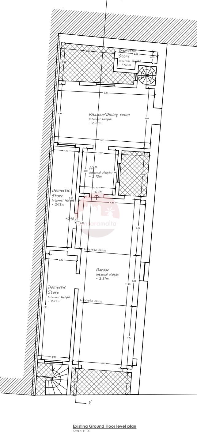
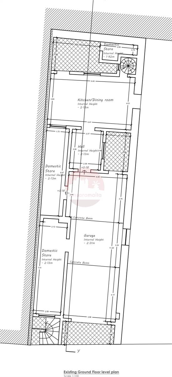
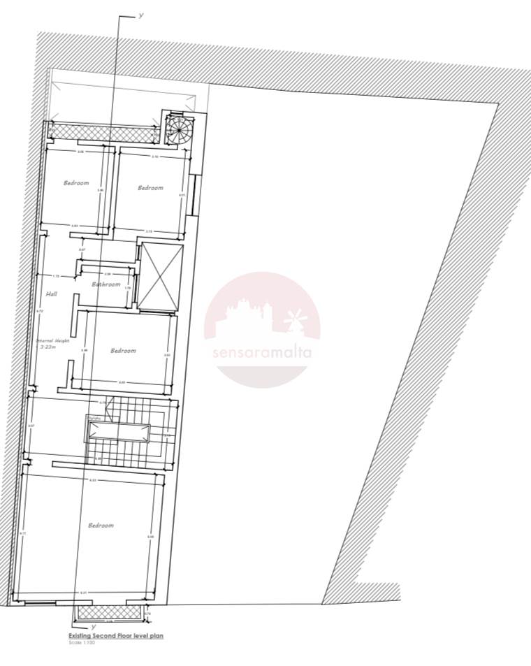
Victoria Gozo - Terraced House - Plot For Sale
Town House for sale • Victoria Gozo
Opportunity to acquire a terraced house with large garage with an option of an adjacent large plot of land.
Another possibility is for a development of ten apartments and eight garages. (permits ready in hand)
Terraced house alone is at the price of €564,000
Terraced house with plot of land 227sqm is at the price of €922,000
Rooms and Features
Code
V020028
Locality
Victoria Gozo
Property type
Town House
Price
564,000 €
Locals
1
Sqm
164
Energetic class
Not applicable
Photos • Floorplans • Video
Photos
Options
Print Property sheet
Send property sheet by mail
Schedule a visit
RealEstate Brokers
Xiberras Joanie
+356 9985 2678
+356 9998 6779
+356 9998 6775
joanie.gozo@sensaramalta.com
Information request
Name *
Phone *
E-mail *
Request Details *
I authorize the processing of my personal data according Regolamento UE n. 679/2016 -
Privacy Policy
I authorize the processing of data for marketing purposes, promotional activities, commercial offers and market surveys.
Send
Share on
We also recommend
for Sale
Rabat - Town House with Shop In UCA Area
820,000 €
for Sale
Hamrun - Townhouse in an Urban Conservation Area
225,500 €
for Sale
Safi - Town House with garden (200sqm) + garage possibility
970,000 €
Keep default settings X
Use of cookies
This site uses cookies. Our (own) cookies and those of our Partners (third party cookies) are used to offer you a unique experience with us. For this reason, together with our partners, we collect and process non-sensitive information (such as the identifier of your device or the pages you visit).
At any time you can delete, modify or verify the information you share in
Cookie preference
or in our
Cookie Policy
and
Privacy Policy
.
Necessary
Functional
Profiling
Analytics
Accept all
Decline all
Accept selected
Cookie preference