Toggle navigation
(+356) 2164 9500
(+356) 9998 6779
info@sensaramalta.com
Head Office - Sensara Malta
Triq Santa Marija, Safi
09.00 to 19.00 hrs
Monday to Saturday
Home
Properties
Sales
Rentals
Foreign
About us
Services
Contacts
Send your request
Previous
Next
338,000 €
CLICK HERE for DETAILED PHOTOS
Zejtun - Duplex 2 Bedroom Apartment / Finished
2 bedroom apartment for sale • Zejtun
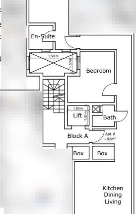
In Zejtun comes this duplex two-bedroom Apartment in a brand new block of highly finished apartments situated on the first and second floor and served with lift.
This apartment consists of a bedroom and bathroom on the first floor with a staircase leading to the second floor where one finds a kitchen/living/dining and another bedroom with private ensuite.
Property will be sold highly finished excluding bathrooms and doors with top-quality materials and attention to details.
Rooms and Features
Code
V020483
Locality
Zejtun
Property type
2 bedroom apartment
Price
338,000 €
Locals
1
Bedrooms
2
Bathrooms
2
Sqm
122
Balconies
1
Energetic class
Nondescript
Photos • Floorplans • Video
Photos
Options
Print Property sheet
Send property sheet by mail
Schedule a visit
RealEstate Brokers
Schembri Josianne
+356 7782 4222
+356 9998 6779
+356 9998 6775
josianne@sensaramalta.com
Information request
Name *
Phone *
E-mail *
Request Details *
I authorize the processing of my personal data according Regolamento UE n. 679/2016 -
Privacy Policy
I authorize the processing of data for marketing purposes, promotional activities, commercial offers and market surveys.
Send
Share on
We also recommend
for Sale
Marsaxlokk - 1st Floor 2 Bedroom Finished Apartment
322,995 €
for Sale
St Pauls Bay - 2 Bedroom Apartment Highly Finished
358,500 €
for Sale
St Venera - 2 Bedroom Finished Apartment Ready Built
290,000 €
Keep default settings X
Use of cookies
This site uses cookies. Our (own) cookies and those of our Partners (third party cookies) are used to offer you a unique experience with us. For this reason, together with our partners, we collect and process non-sensitive information (such as the identifier of your device or the pages you visit).
At any time you can delete, modify or verify the information you share in
Cookie preference
or in our
Cookie Policy
and
Privacy Policy
.
Necessary
Functional
Profiling
Analytics
Accept all
Decline all
Accept selected
Cookie preference