Toggle navigation
(+356) 2164 9500
(+356) 9998 6779
info@sensaramalta.com
Head Office - Sensara Malta
Triq Santa Marija, Safi
09.00 to 19.00 hrs
Monday to Saturday
Home
Properties
Sales
Rentals
Foreign
About us
Services
Contacts
Send your request
Previous
Next
585,000 €
CLICK HERE for DETAILED PHOTOS
Qrendi - 3 Bedroom Penthouse + Airspace
Penthouse for sale • Qrendi
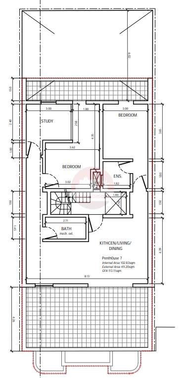
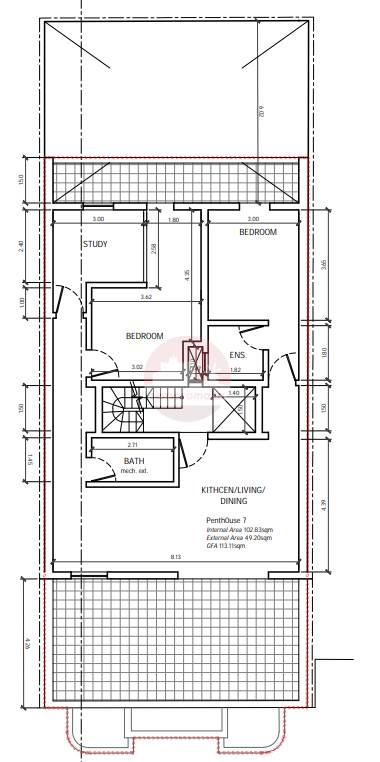
Exquisite large Penthouse on plan with airspace - modern three-bedroom, two-bathroom with luxurious finishes in the quiet village of Qrendi, perfectly tailored for modern comfort. This Penthouse consists of a kitchen/living/dining, two double bedrooms master with ensuite, spare bedroom, main bathroom, back balcony and a front terrace. This apartment will be sold highly finished (excluding bathrooms and doors) with all common parts ready and served with a lift. Optional Garages are available at an extra price.
Rooms and Features
Code
V020518
Locality
Qrendi
Property type
Penthouse
Price
585,000 €
Locals
1
Bedrooms
3
Bathrooms
2
Sqm
153
Balconies
1
Terraces
1
Floor
4
Energetic class
Nondescript
Property Conditions
Under Construction
Accessories:
Veranda
Photos • Floorplans • Video
Photos
Options
Print Property sheet
Send property sheet by mail
Schedule a visit
RealEstate Brokers
Schembri Maria Pawla
+356 7732 8183
+356 9998 6779
+356 9998 6775
pawla@sensaramalta.com
Information request
Name *
Phone *
E-mail *
Request Details *
I authorize the processing of my personal data according Regolamento UE n. 679/2016 -
Privacy Policy
I authorize the processing of data for marketing purposes, promotional activities, commercial offers and market surveys.
Send
Share on
We also recommend
for Sale
Qormi - 3 Bedroom Finished Penthouse On Plan
450,500 €
for Sale
Mosta - 3 Bedroom Finished Penthouse 290sqm
696,500 €
for Sale
Birkirkara - 3 Bedroom Finished Penthouse With Pool+Airspace Ready Built
558,000 €
Keep default settings X
Use of cookies
This site uses cookies. Our (own) cookies and those of our Partners (third party cookies) are used to offer you a unique experience with us. For this reason, together with our partners, we collect and process non-sensitive information (such as the identifier of your device or the pages you visit).
At any time you can delete, modify or verify the information you share in
Cookie preference
or in our
Cookie Policy
and
Privacy Policy
.
Necessary
Functional
Profiling
Analytics
Accept all
Decline all
Accept selected
Cookie preference