Toggle navigation
(+356) 2164 9500
(+356) 9998 6779
info@sensaramalta.com
Head Office - Sensara Malta
Triq Santa Marija, Safi
09.00 to 19.00 hrs
Monday to Saturday
Home
Properties
Sales
Rentals
Foreign
About us
Services
Contacts
Send your request
Previous
Next
241,000 €
CLICK HERE for DETAILED PHOTOS
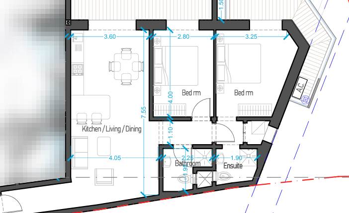
Paola - 2 Bedroom Finished Apartment On Plan
2 bedroom apartment for sale • Paola
Presently on the plan, development is projected to commence in July 2025, forming part of a block of 6 units, two on each floor, and being offered finished excluding bathrooms and internal doors.
This apartment has a kitchen/living/dining overlooking a front balcony, a side guest bathroom, and a corridor leading to its study and bedroom.
Completion of common parts will be finished by July 2026.
These apartments are ideal either for rental investment or for first-time buyers.
Freehold.
Rooms and Features
Code
V021496
Locality
Paola
Property type
2 bedroom apartment
Price
241,000 €
Locals
1
Bedrooms
2
Bathrooms
1
Sqm
67
Floor
3
Energetic class
Not applicable
Property Conditions
Under Construction
Photos • Floorplans • Video
Photos
Options
Print Property sheet
Send property sheet by mail
Schedule a visit
RealEstate Brokers
Jenkins Rita
+356 7712 7772
+356 9998 6779
+356 9998 6775
rita@sensaramalta.com
Information request
Name *
Phone *
E-mail *
Request Details *
I authorize the processing of my personal data according Regolamento UE n. 679/2016 -
Privacy Policy
I authorize the processing of data for marketing purposes, promotional activities, commercial offers and market surveys.
Send
Share on
We also recommend
for Sale
Mellieha - 2 Double Bedroom Apartment with Views
410,000 €
for Sale
Fgura - 2 Bedroom Apartment On Plan
269,000 €
for Sale
Marsaxlokk - 1st Floor 2 Bedroom Finished Apartment
322,995 €
Keep default settings X
Use of cookies
This site uses cookies. Our (own) cookies and those of our Partners (third party cookies) are used to offer you a unique experience with us. For this reason, together with our partners, we collect and process non-sensitive information (such as the identifier of your device or the pages you visit).
At any time you can delete, modify or verify the information you share in
Cookie preference
or in our
Cookie Policy
and
Privacy Policy
.
Necessary
Functional
Profiling
Analytics
Accept all
Decline all
Accept selected
Cookie preference