Toggle navigation
(+356) 2164 9500
(+356) 9998 6779
info@sensaramalta.com
Head Office - Sensara Malta
Triq Santa Marija, Safi
09.00 to 19.00 hrs
Monday to Saturday
Home
Properties
Sales
Rentals
Foreign
About us
Services
Contacts
Send your request
Previous
Next
270,000 €
CLICK HERE for DETAILED PHOTOS
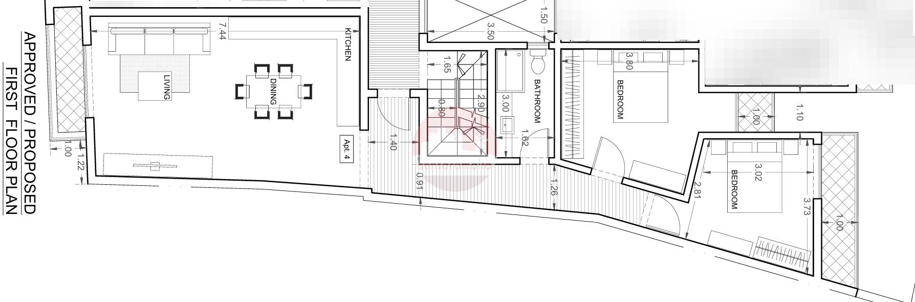
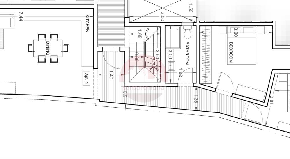
Xghajra - 2 Bedroom 1st Floor Finished Apartment On Plan
2 bedroom apartment for sale • Xghajra
Take the opportunity to own your dream home for less with this on-plan 2-bedroom apartment set on the First Floor Level, located in the quiet and charming seaside village of Xgħajra. Set to be completed by 2026, the property is being offered finished, excluding bathrooms and doors.
The well-planned layout features a bright and spacious open-plan kitchen, living, and dining area, perfect for both daily comfort and entertaining. It includes two generously sized bedrooms and a main bathroom. Two balconies add valuable outdoor space.
Whether you're a first-time buyer, an investor, or searching for a peaceful home close to the coast, this property offers a great blend of comfort, potential, and location.
Rooms and Features
Code
V021970
Locality
Xghajra
Property type
2 bedroom apartment
Price
270,000 €
Locals
1
Bedrooms
2
Bathrooms
1
Sqm
90
Floor
3
Energetic class
Nondescript
Photos • Floorplans • Video
Photos
Options
Print Property sheet
Send property sheet by mail
Schedule a visit
RealEstate Brokers
Zahra Gaynor
+356 7933 5643
+356 9998 6775
+356 9998 6779
gaynor@sensaramalta.com
Information request
Name *
Phone *
E-mail *
Request Details *
I authorize the processing of my personal data according Regolamento UE n. 679/2016 -
Privacy Policy
I authorize the processing of data for marketing purposes, promotional activities, commercial offers and market surveys.
Send
Share on
We also recommend
for Sale
Luqa - 2 Bed,2 Bath Finished 3rd Flr Apartment
302,000 €
for Sale
Mellieha – Ghadira 146 sqm 2-Bedroom Apartment with Sea Views
689,000 €
for Sale
Luqa - 2 Bed,2 Bath Finished 1St Flr Apartment
292,000 €
Keep default settings X
Use of cookies
This site uses cookies. Our (own) cookies and those of our Partners (third party cookies) are used to offer you a unique experience with us. For this reason, together with our partners, we collect and process non-sensitive information (such as the identifier of your device or the pages you visit).
At any time you can delete, modify or verify the information you share in
Cookie preference
or in our
Cookie Policy
and
Privacy Policy
.
Necessary
Functional
Profiling
Analytics
Accept all
Decline all
Accept selected
Cookie preference