Toggle navigation
(+356) 2164 9500
(+356) 9998 6779
info@sensaramalta.com
Head Office - Sensara Malta
Triq Santa Marija, Safi
09.00 to 19.00 hrs
Monday to Saturday
Home
Properties
Sales
Rentals
Foreign
About us
Services
Contacts
Send your request
Previous
Next
295,000 €
CLICK HERE for DETAILED PHOTOS
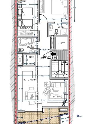
Pieta Under Construction 1st floor 2 Bedroom Apartment Fully finished
2 bedroom apartment for sale • Pieta
** Further Reduction For Sensara Clients **
Currently Under Construction comes this new development of 9 units which in a good area in Pieta - ideal for prospective buyers looking for a fully finished property.
This apartment consists of a 2-bedroom on the 1st floor, of which both bedrooms are served with an ensuite, master bathroom, an open plan overlooking the front balcony, and also a back balcony.
The property is being offered fully finished, including bathrooms and internal doors.
Freehold.
Rooms and Features
Code
V022063
Locality
Pieta
Property type
2 bedroom apartment
Price
295,000 €
Locals
1
Bedrooms
2
Bathrooms
3
Sqm
90
Floor
1
Energetic class
Not applicable
Property Conditions
New
Photos • Floorplans • Video
Photos
Options
Print Property sheet
Send property sheet by mail
Schedule a visit
RealEstate Brokers
Schembri Maria Pawla
+356 7732 8183
+356 9998 6779
+356 9998 6775
pawla@sensaramalta.com
Information request
Name *
Phone *
E-mail *
Request Details *
I authorize the processing of my personal data according Regolamento UE n. 679/2016 -
Privacy Policy
I authorize the processing of data for marketing purposes, promotional activities, commercial offers and market surveys.
Send
Share on
We also recommend
for Sale
Mosta, Already Built ** Finished 2 Bedroom Apartment with Terrace & Balcony ** optional Garages
343,000 €
for Sale
Marsascala - 2 Bedroom Ground Floor Furnished Apartment
270,000 €
for Sale
Swatar - 2 Bedroom Finished Second Floor Apartment ON PLAN
362,000 €
Keep default settings X
Use of cookies
This site uses cookies. Our (own) cookies and those of our Partners (third party cookies) are used to offer you a unique experience with us. For this reason, together with our partners, we collect and process non-sensitive information (such as the identifier of your device or the pages you visit).
At any time you can delete, modify or verify the information you share in
Cookie preference
or in our
Cookie Policy
and
Privacy Policy
.
Necessary
Functional
Profiling
Analytics
Accept all
Decline all
Accept selected
Cookie preference