Toggle navigation
(+356) 2164 9500
(+356) 9998 6779
info@sensaramalta.com
Head Office - Sensara Malta
Triq Santa Marija, Safi
09.00 to 19.00 hrs
Monday to Saturday
Home
Properties
Sales
Rentals
Foreign
About us
Services
Contacts
Send your request
Previous
Next
358,400 €
CLICK HERE for DETAILED PHOTOS
Birzebbugia - Under Construction 2 B/RM Penthouse + Airspace + Views
Penthouse for sale • Birzebbugia
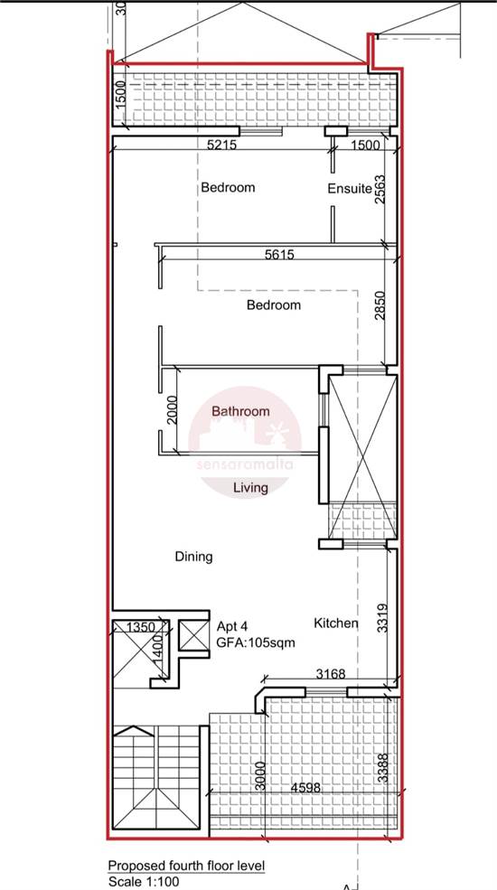
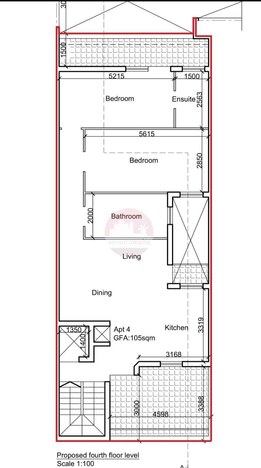
Under Construction - Fourth Floor Penthouse, located in a quiet area of Birżebbuġa. Situated in a small block of only four units, served with a lift. This property will be offered finished, excluding bathrooms and internal doors, with ownership of Airspace.
The layout consists of an Open Plan Kitchen/Living/Dining Leading onto a front Terrace ideal for entertaining and enjoying country views, a main bathroom, two bedrooms, of which the main bedroom includes an en-suite and a back drying Terrace.
Freehold
Rooms and Features
Code
V022336
Locality
Birzebbugia
Property type
Penthouse
Price
358,400 €
Locals
1
Bedrooms
2
Bathrooms
2
Sqm
105
Terraces
2
Energetic class
Nondescript
Photos • Floorplans • Video
Photos
Options
Print Property sheet
Send property sheet by mail
Schedule a visit
RealEstate Brokers
Jenkins Rita
+356 7712 7772
+356 9998 6779
+356 9998 6775
rita@sensaramalta.com
Information request
Name *
Phone *
E-mail *
Request Details *
I authorize the processing of my personal data according Regolamento UE n. 679/2016 -
Privacy Policy
I authorize the processing of data for marketing purposes, promotional activities, commercial offers and market surveys.
Send
Share on
We also recommend
for Sale
Ghajnsielem - 2 Bedroom Penthouse
409,500 €
for Sale
Balzan - 3 Bedroom Penthouse + Airspace
626,500 €
for Sale
Qawra - Duplex 4 Bedroom Penthouse + Lift
430,000 €
Keep default settings X
Use of cookies
This site uses cookies. Our (own) cookies and those of our Partners (third party cookies) are used to offer you a unique experience with us. For this reason, together with our partners, we collect and process non-sensitive information (such as the identifier of your device or the pages you visit).
At any time you can delete, modify or verify the information you share in
Cookie preference
or in our
Cookie Policy
and
Privacy Policy
.
Necessary
Functional
Profiling
Analytics
Accept all
Decline all
Accept selected
Cookie preference