Toggle navigation
(+356) 2164 9500
(+356) 9998 6779
info@sensaramalta.com
Head Office - Sensara Malta
Triq Santa Marija, Safi
09.00 to 19.00 hrs
Monday to Saturday
Home
Properties
Sales
Rentals
Foreign
About us
Services
Contacts
Send your request
Previous
Next
320,000 €
CLICK HERE for DETAILED PHOTOS
Zabbar - 3 Bedroom Apartment - Finished
3+ bedroom apartment for sale • Zabbar
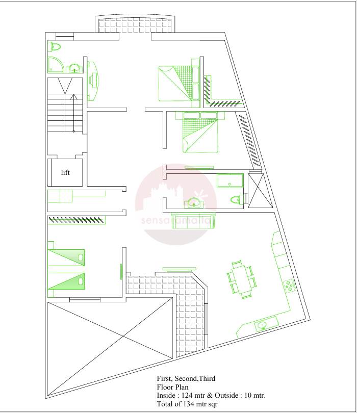
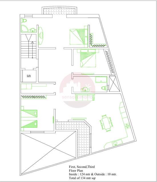
New on the market comes this development featuring a small block with one unit per floor, served with a lift and is estimated to be completed by February 2026 apprx. Units will be finished excluding bathrooms and internal doors, allowing buyers to personalise the final touches to their taste.
The second-floor level offers a well-designed, squarish layout that is full of natural light throughout. This Apartment includes an entrance hallway leading to a spacious open plan kitchen/ living/ dining with a good-sized front balcony.
layout also comprises a main bathroom, a utility/box room, and three bedrooms. The main bedroom enjoys the comfort of an en-suite, a walk-in wardrobe, and a private back balcony.
Freehold.
Rooms and Features
Code
V022515
Locality
Zabbar
Property type
3+ bedroom apartment
Price
320,000 €
Locals
1
Bedrooms
3
Bathrooms
2
Sqm
134
Balconies
2
Floor
2
Energetic class
Nondescript
Property Conditions
Under Construction
Photos • Floorplans • Video
Photos
Options
Print Property sheet
Send property sheet by mail
Schedule a visit
RealEstate Brokers
Grima Cleaven
+356 7926 9223
+356 9998 6779
+356 2164 9500
cleaven@sensaramalta.com
Information request
Name *
Phone *
E-mail *
Request Details *
I authorize the processing of my personal data according Regolamento UE n. 679/2016 -
Privacy Policy
I authorize the processing of data for marketing purposes, promotional activities, commercial offers and market surveys.
Send
Share on
We also recommend
for Sale
Kalkara - 1st Floor 3 Bedroom Semi-Finished Apartment
405,000 €
for Sale
Isla - Duplex 3 Bedroom Apartment + Roof + Airspace + Views
819,000 €
for Sale
Ghadira - 1st Floor 3 Bedroom Apartment
409,500 €
Keep default settings X
Use of cookies
This site uses cookies. Our (own) cookies and those of our Partners (third party cookies) are used to offer you a unique experience with us. For this reason, together with our partners, we collect and process non-sensitive information (such as the identifier of your device or the pages you visit).
At any time you can delete, modify or verify the information you share in
Cookie preference
or in our
Cookie Policy
and
Privacy Policy
.
Necessary
Functional
Profiling
Analytics
Accept all
Decline all
Accept selected
Cookie preference