Toggle navigation
(+356) 2164 9500
(+356) 9998 6779
info@sensaramalta.com
Head Office - Sensara Malta
Triq Santa Marija, Safi
09.00 to 19.00 hrs
Monday to Saturday
Home
Properties
Sales
Rentals
Foreign
About us
Services
Contacts
Send your request
Previous
Next
325,000 €
CLICK HERE for DETAILED PHOTOS
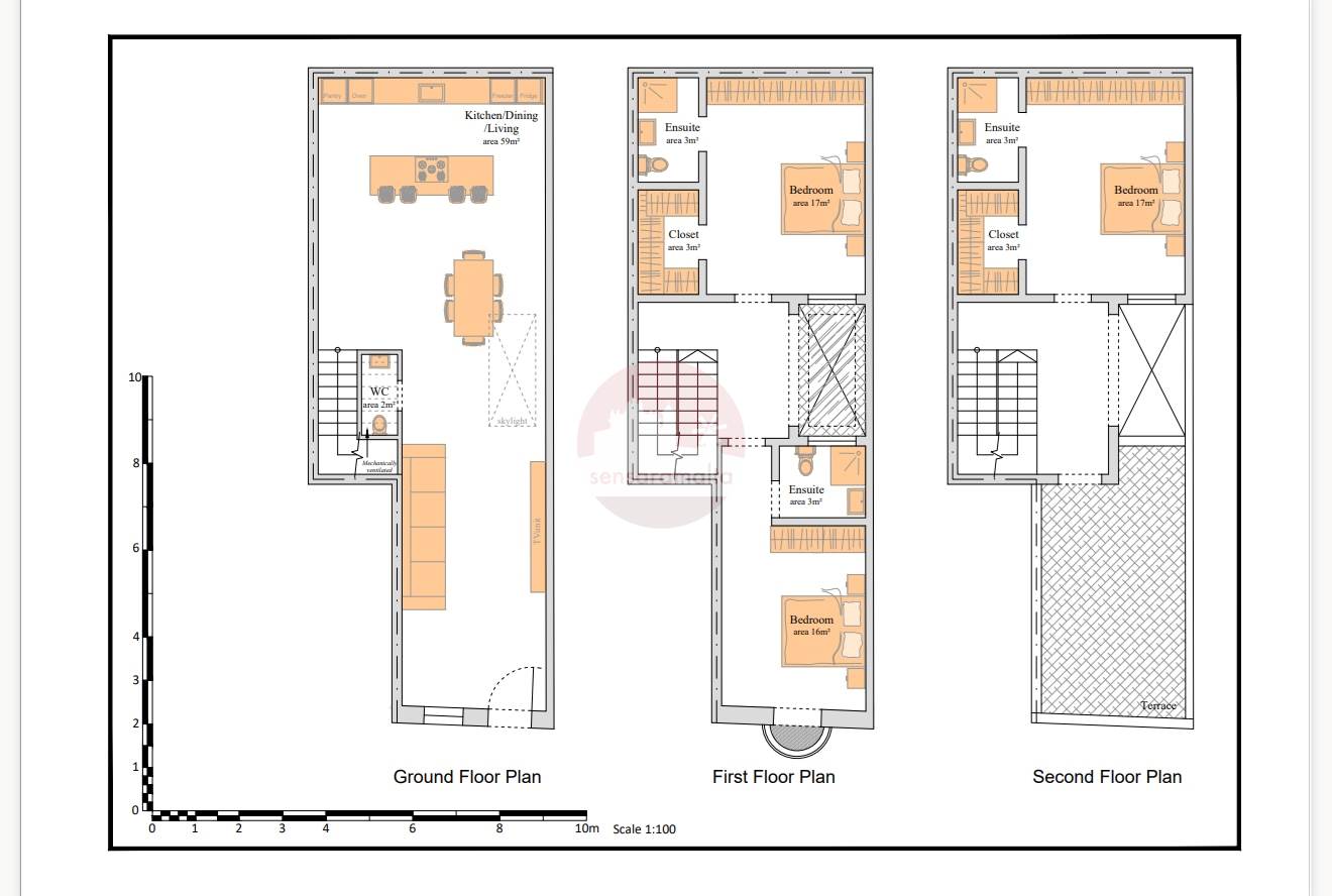
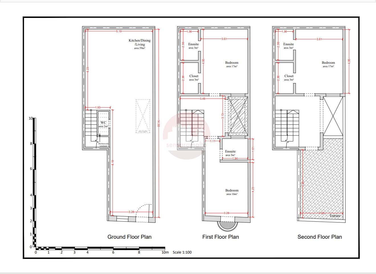
Nadur Gozo - 3 Bedroom Terraced House
Town House for sale • Nadur Gozo
On plan, three bedroom terraced house
Open plan kitchen/dining/living and main bathroom on the ground floor.
Bedroom with ensuite closet and another bedroom with ensuite on the first floor
Bedroom with ensuite, closet and terrace on the second floor.
PRICE IS IN SHELL FORM
Rooms and Features
Code
V022534
Locality
Nadur Gozo
Property type
Town House
Price
325,000 €
Locals
1
Sqm
72
Energetic class
Not applicable
Photos • Floorplans • Video
Photos
Options
Print Property sheet
Send property sheet by mail
Schedule a visit
RealEstate Brokers
Xiberras Joanie
+356 9985 2678
+356 9998 6779
+356 9998 6775
joanie.gozo@sensaramalta.com
Information request
Name *
Phone *
E-mail *
Request Details *
I authorize the processing of my personal data according Regolamento UE n. 679/2016 -
Privacy Policy
I authorize the processing of data for marketing purposes, promotional activities, commercial offers and market surveys.
Send
Share on
We also recommend
for Sale
Dingli - Townhouse in a UCA Area circa 137 sqm with back garden
465,000 €
for Sale
Mosta - Habitable 2 Bedroom Townhouse
850,000 €
for Sale
Qala Gozo - Unconverted House + Plot
1,640,000 €
Keep default settings X
Use of cookies
This site uses cookies. Our (own) cookies and those of our Partners (third party cookies) are used to offer you a unique experience with us. For this reason, together with our partners, we collect and process non-sensitive information (such as the identifier of your device or the pages you visit).
At any time you can delete, modify or verify the information you share in
Cookie preference
or in our
Cookie Policy
and
Privacy Policy
.
Necessary
Functional
Profiling
Analytics
Accept all
Decline all
Accept selected
Cookie preference