Toggle navigation
(+356) 2164 9500
(+356) 9998 6779
info@sensaramalta.com
Head Office - Sensara Malta
Triq Santa Marija, Safi
09.00 to 19.00 hrs
Monday to Saturday
Home
Properties
Sales
Rentals
Foreign
About us
Services
Contacts
Send your request
Previous
Next
307,000 €
CLICK HERE for DETAILED PHOTOS
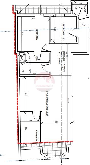
Balzan - Second Floor Finished 2 Bedroom Apartment On Plan
3+ bedroom apartment for sale • Balzan
Located in Balzan comes this second floor finished apartment on plan and is estimate to be completed by Mid-2017.
Comprising an open-plan kitchen/dining/living area leading to a front balcony, this property also includes a washroom, main bathroom, and three double bedrooms. The master bedroom features an ensuite and has direct access to a terrace. The unit is served with a lift and is offered finished, excluding bathrooms and internal doors.
This apartment is ideal for first-time buyers seeking a future home or investors looking for a well-located, high-demand rental property.
Optional garages are available at an extra price.
Rooms and Features
Code
V022689
Locality
Balzan
Property type
3+ bedroom apartment
Price
307,000 €
Locals
1
Bedrooms
3
Bathrooms
2
Sqm
118
Balconies
1
Floor
2
Energetic class
Nondescript
Photos • Floorplans • Video
Photos
Options
Print Property sheet
Send property sheet by mail
Schedule a visit
RealEstate Brokers
Zahra Gaynor
+356 7933 5643
+356 9998 6775
+356 9998 6779
gaynor@sensaramalta.com
Information request
Name *
Phone *
E-mail *
Request Details *
I authorize the processing of my personal data according Regolamento UE n. 679/2016 -
Privacy Policy
I authorize the processing of data for marketing purposes, promotional activities, commercial offers and market surveys.
Send
Share on
We also recommend
for Sale
Qawra - Furnished 3/4 Bdr Elv Grd Flr Apartment
368,500 €
for Sale
Qajjenza - 3 Bedroom Apartment Finished 160sqm
455,000 €
for Sale
Nadur Gozo - 3 Bedroom Apartment + Views + Communal Pools
285,000 €
Keep default settings X
Use of cookies
This site uses cookies. Our (own) cookies and those of our Partners (third party cookies) are used to offer you a unique experience with us. For this reason, together with our partners, we collect and process non-sensitive information (such as the identifier of your device or the pages you visit).
At any time you can delete, modify or verify the information you share in
Cookie preference
or in our
Cookie Policy
and
Privacy Policy
.
Necessary
Functional
Profiling
Analytics
Accept all
Decline all
Accept selected
Cookie preference