Toggle navigation
(+356) 2164 9500
(+356) 9998 6779
info@sensaramalta.com
Head Office - Sensara Malta
Triq Santa Marija, Safi
09.00 to 19.00 hrs
Monday to Saturday
Home
Properties
Sales
Rentals
Foreign
About us
Services
Contacts
Send your request
Previous
Next
348,000 €
CLICK HERE for DETAILED PHOTOS
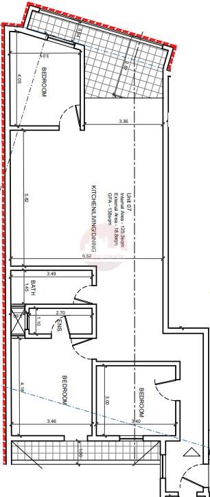
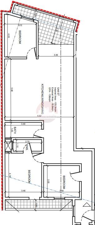
Balzan - Second Floor Finished 3 Bedroom Apt + Outdoor, On Plan
3+ bedroom apartment for sale • Balzan
Located in Balzan comes this second floor finished apartment on plan and is estimate to be completed by Mid-2017.
Comprising an open-plan kitchen/dining/living area leading to a front terrace, this property also includes a washroom, main bathroom, and three double bedrooms. The master bedroom features an ensuite and has direct access to a private balcony. The unit is served with a lift and is offered finished, excluding bathrooms and internal doors.
This apartment is ideal for first-time buyers seeking a future home or investors looking for a well-located, high-demand rental property.
Optional garages are available at an extra price.
Rooms and Features
Code
V022690
Locality
Balzan
Property type
3+ bedroom apartment
Price
348,000 €
Locals
1
Bedrooms
3
Bathrooms
2
Sqm
138
Balconies
1
Terraces
1
Energetic class
Nondescript
Photos • Floorplans • Video
Photos
Options
Print Property sheet
Send property sheet by mail
Schedule a visit
RealEstate Brokers
Schembri Josianne
+356 7782 4222
+356 9998 6779
+356 9998 6775
josianne@sensaramalta.com
Information request
Name *
Phone *
E-mail *
Request Details *
I authorize the processing of my personal data according Regolamento UE n. 679/2016 -
Privacy Policy
I authorize the processing of data for marketing purposes, promotional activities, commercial offers and market surveys.
Send
Share on
We also recommend
for Sale
Zejtun - 3 Bedroom Apartment Finished
343,000 €
for Sale
Victoria Gozo - 3 Bedroom Apartment
431,000 €
for Sale
Bugibba - Highly Furnished Apartment
358,500 €
Keep default settings X
Use of cookies
This site uses cookies. Our (own) cookies and those of our Partners (third party cookies) are used to offer you a unique experience with us. For this reason, together with our partners, we collect and process non-sensitive information (such as the identifier of your device or the pages you visit).
At any time you can delete, modify or verify the information you share in
Cookie preference
or in our
Cookie Policy
and
Privacy Policy
.
Necessary
Functional
Profiling
Analytics
Accept all
Decline all
Accept selected
Cookie preference