Toggle navigation
(+356) 2164 9500
(+356) 9998 6779
info@sensaramalta.com
Head Office - Sensara Malta
Triq Santa Marija, Safi
09.00 to 19.00 hrs
Monday to Saturday
Home
Properties
Sales
Rentals
Foreign
About us
Services
Contacts
Send your request
Previous
Next
1,025,000 €
CLICK HERE for DETAILED PHOTOS
Xewkija Gozo - 5 Bedroom Terraced House + Pool + Garage + Garden
Town House for sale • Xewkija Gozo
XEWKIJA – Massive 5-Bedroom Terraced House with Pool, Garden & ODZ Views
Situated on the peaceful outskirts of Xewkija, this already built terraced house offers an exceptional opportunity to own a spacious and private residence in Gozo’s countryside.
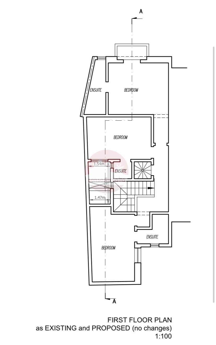
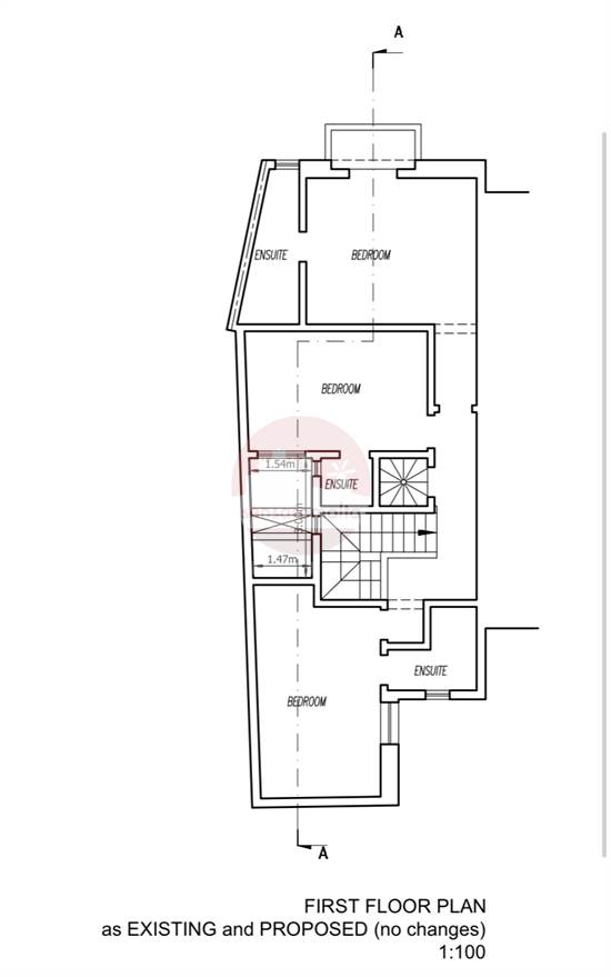
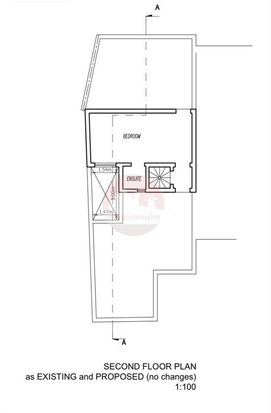
Featuring five large bedrooms, each with its own ensuite bathroom, this property combines comfort with generous indoor and outdoor spaces.
✔️ Private Pool & Garden – Ideal for entertaining or unwinding in peace
✔️ Uninterrupted ODZ Views – Enjoy beautiful countryside scenery from your own home
✔️ Huge 8-Car Garage – With garage door and apertures included
✔️ Another Floor Can Be Built – Full ownership with future development potential
✔️ Tiles and Apertures Included in Price
This impressive home is in a quiet, private location yet remains close to all amenities. Whether for residential use or investment, this is a rare find on the island.
📍 Freehold | Already Built | Viewing Highly Recommended
Rooms and Features
Code
V022706
Locality
Xewkija Gozo
Property type
Town House
Price
1,025,000 €
Locals
1
Bedrooms
5
Sqm
260
Energetic class
Not applicable
Photos • Floorplans • Video
Photos
Options
Print Property sheet
Send property sheet by mail
Schedule a visit
RealEstate Brokers
Xiberras Joanie
+356 9985 2678
+356 9998 6779
+356 9998 6775
joanie.gozo@sensaramalta.com
Information request
Name *
Phone *
E-mail *
Request Details *
I authorize the processing of my personal data according Regolamento UE n. 679/2016 -
Privacy Policy
I authorize the processing of data for marketing purposes, promotional activities, commercial offers and market surveys.
Send
Share on
We also recommend
for Sale
Kalkara - 3 Bedroom Seafront Townhouse
686,000 €
for Sale
Luqa - Double Fronted Townhouse + Large Garden
1,740,000 €
for Sale
Mosta - Corner 3 Bedroom Townhouse
512,000 €
Keep default settings X
Use of cookies
This site uses cookies. Our (own) cookies and those of our Partners (third party cookies) are used to offer you a unique experience with us. For this reason, together with our partners, we collect and process non-sensitive information (such as the identifier of your device or the pages you visit).
At any time you can delete, modify or verify the information you share in
Cookie preference
or in our
Cookie Policy
and
Privacy Policy
.
Necessary
Functional
Profiling
Analytics
Accept all
Decline all
Accept selected
Cookie preference