Toggle navigation
(+356) 2164 9500
(+356) 9998 6779
info@sensaramalta.com
Head Office - Sensara Malta
Triq Santa Marija, Safi
09.00 to 19.00 hrs
Monday to Saturday
Home
Properties
Sales
Rentals
Foreign
About us
Services
Contacts
Send your request
Previous
Next
308,000 €
CLICK HERE for DETAILED PHOTOS
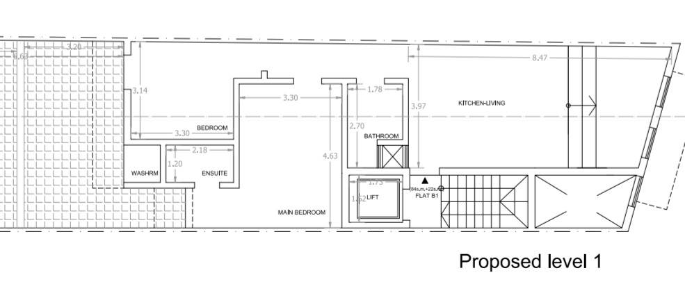
Gudja - 1st Floor 2 Bedroom Fully Finished Apartment + Backyard
3+ bedroom apartment for sale • Gudja
Located in the village of Gudja, this fully finished apartment on plan.
Comprising an open-plan kitchen/dining/living area. This property also includes a, washroom, main bathroom, 2 double bedrooms and a back yard. The master bedroom features an en-suite.
The unit is served with a lift and is offered fully finished. Estimate completion date June 2027.
This apartment is ideal for first-time buyers seeking a future home or investors looking for a well-located, high-demand rental property.
Freehold
Rooms and Features
Code
V022740
Locality
Gudja
Property type
3+ bedroom apartment
Price
308,000 €
Locals
1
Bedrooms
3
Bathrooms
2
Sqm
108
Balconies
1
Terraces
1
Floor
1
Energetic class
Not applicable
Property Conditions
New
Furniture
Not Furnished
Kitchen
Open Kitchen
Accessories:
Elevator, Double Glazing
Photos • Floorplans • Video
Photos
Options
Print Property sheet
Send property sheet by mail
Schedule a visit
RealEstate Brokers
Grima Keith
+356 7902 0587
+356 9998 6775
+356 9998 6779
keith@sensaramalta.com
Information request
Name *
Phone *
E-mail *
Request Details *
I authorize the processing of my personal data according Regolamento UE n. 679/2016 -
Privacy Policy
I authorize the processing of data for marketing purposes, promotional activities, commercial offers and market surveys.
Send
Share on
We also recommend
for Sale
Fgura - 3 Bedroom First Floor Finished Apartment Ready Built
295,000 €
for Sale
Mellieha Ghadira - 3 Bedroom Apartment + Highly Finished
356,500 €
for Sale
Burmarrad - 3 Bedroom Apartment
315,000 €
Keep default settings X
Use of cookies
This site uses cookies. Our (own) cookies and those of our Partners (third party cookies) are used to offer you a unique experience with us. For this reason, together with our partners, we collect and process non-sensitive information (such as the identifier of your device or the pages you visit).
At any time you can delete, modify or verify the information you share in
Cookie preference
or in our
Cookie Policy
and
Privacy Policy
.
Necessary
Functional
Profiling
Analytics
Accept all
Decline all
Accept selected
Cookie preference