Toggle navigation
(+356) 2164 9500
(+356) 9998 6779
info@sensaramalta.com
Head Office - Sensara Malta
Triq Santa Marija, Safi
09.00 to 19.00 hrs
Monday to Saturday
Home
Properties
Sales
Rentals
Foreign
About us
Services
Contacts
Send your request
Previous
Next
610,000 €
CLICK HERE for DETAILED PHOTOS
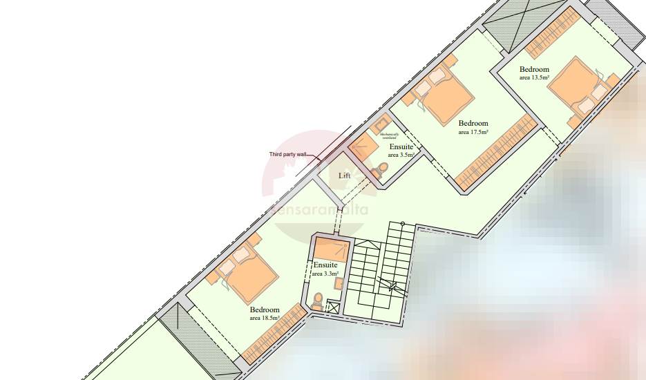
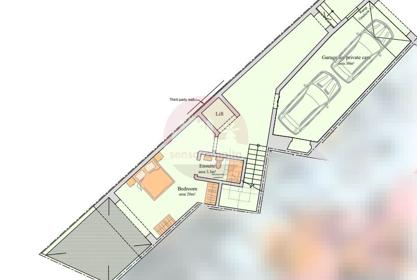
Birkirkara - 4 Bedroom Townhouse + 2 Car Garage, On Plan
Town House for sale • Birkirkara
Townhouse located in Birkirkara offers a practical layout with an internally connected 2-car garage, space for a lift, a spacious kitchen/dining/living area, and a backyard. The property also includes 4 bedrooms, 4 bathrooms, balconies, and a terrace making it a comfortable home in a central location.
This townhouse is being offered in shell form and is estimate to be ready by end of 2026.
Rooms and Features
Code
V022811
Locality
Birkirkara
Property type
Town House
Price
610,000 €
Locals
1
Bedrooms
4
Bathrooms
4
Sqm
120
Terraces
1
Energetic class
Nondescript
Photos • Floorplans • Video
Photos
Options
Print Property sheet
Send property sheet by mail
Schedule a visit
RealEstate Brokers
Schembri Josianne
+356 7782 4222
+356 9998 6779
+356 9998 6775
josianne@sensaramalta.com
Information request
Name *
Phone *
E-mail *
Request Details *
I authorize the processing of my personal data according Regolamento UE n. 679/2016 -
Privacy Policy
I authorize the processing of data for marketing purposes, promotional activities, commercial offers and market surveys.
Send
Share on
We also recommend
for Sale
B'Kara - Town House 190 sqm
538,000 €
for Sale
Qormi - Historical Town House in a UCA area
550,000 €
for Sale
Qormi - 3 Bedroom Townhouse circa 177 sqm + Garden
655,000 €
Keep default settings X
Use of cookies
This site uses cookies. Our (own) cookies and those of our Partners (third party cookies) are used to offer you a unique experience with us. For this reason, together with our partners, we collect and process non-sensitive information (such as the identifier of your device or the pages you visit).
At any time you can delete, modify or verify the information you share in
Cookie preference
or in our
Cookie Policy
and
Privacy Policy
.
Necessary
Functional
Profiling
Analytics
Accept all
Decline all
Accept selected
Cookie preference