Toggle navigation
(+356) 2164 9500
(+356) 9998 6779
info@sensaramalta.com
Head Office - Sensara Malta
Triq Santa Marija, Safi
09.00 to 19.00 hrs
Monday to Saturday
Home
Properties
Sales
Rentals
Foreign
About us
Services
Contacts
Send your request
Previous
Next
270,000 €
CLICK HERE for DETAILED PHOTOS
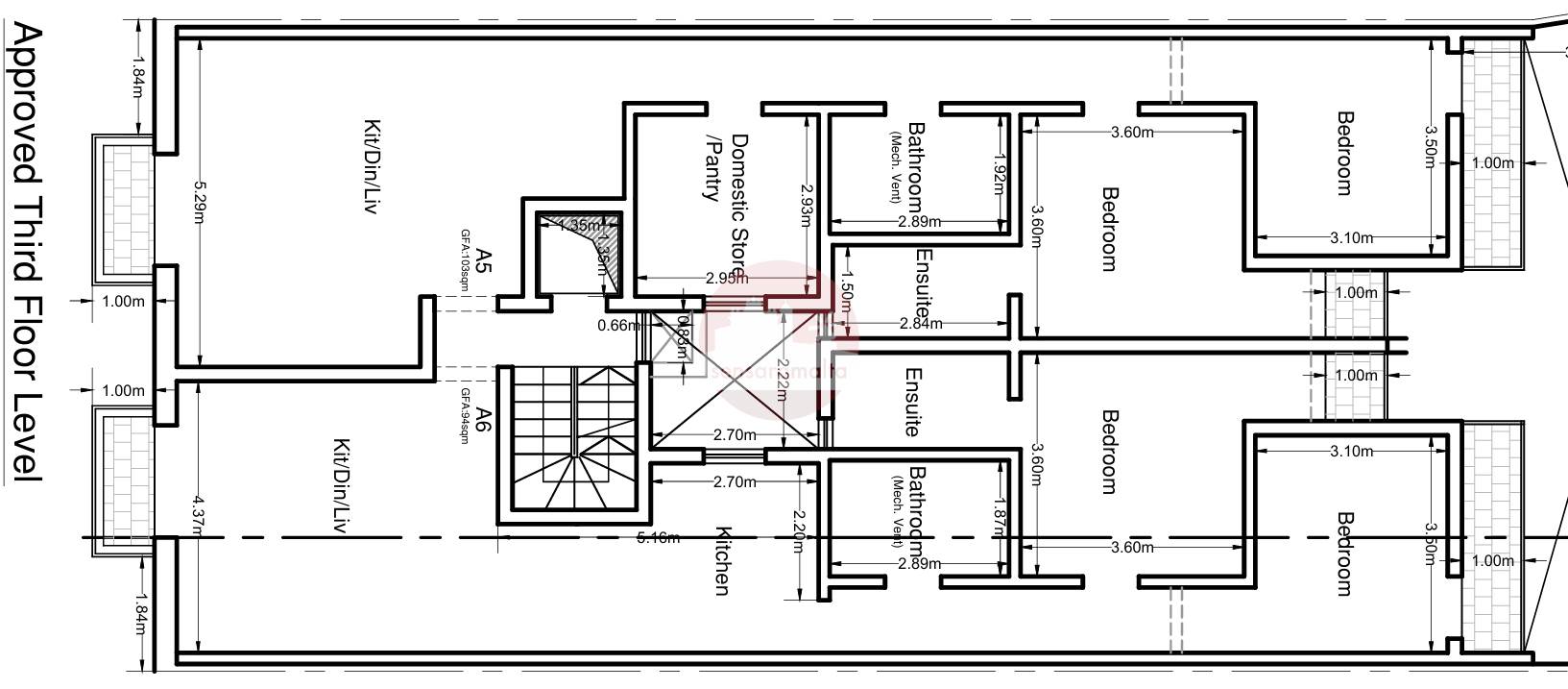
Tarxien - 3rd Floor 2 Bedroom + Large Study Apartment
3+ bedroom apartment for sale • Tarxien
In Tarxien comes this new residential block, which consists of a ground-floor maisonnette, 6 apartments, and 2 penthouses. Each unit will be offered finished, excluding bathrooms and internal doors, and it is planned to be completed by June 2026 .
This 3rd floor apartment consists of a front square open plan overlooking a front balcony, a large study room a master bathroom, 2 double bedrooms, both served with a balcony, and the main bedroom served with an en-suite.
Freehold.
Rooms and Features
Code
V022823
Locality
Tarxien
Property type
3+ bedroom apartment
Price
270,000 €
Locals
1
Bedrooms
3
Bathrooms
2
Sqm
103
Balconies
3
Floor
3
Energetic class
Not applicable
Property Conditions
Under Construction
Photos • Floorplans • Video
Photos
Options
Print Property sheet
Send property sheet by mail
Schedule a visit
RealEstate Brokers
Schembri Maria Pawla
+356 7732 8183
+356 9998 6779
+356 9998 6775
pawla@sensaramalta.com
Information request
Name *
Phone *
E-mail *
Request Details *
I authorize the processing of my personal data according Regolamento UE n. 679/2016 -
Privacy Policy
I authorize the processing of data for marketing purposes, promotional activities, commercial offers and market surveys.
Send
Share on
We also recommend
for Sale
Mtarfa - 3 Bedroom Apartment
358,500 €
for Sale
Marsaxlokk - 3 Bedroom Finished Apartment
402,420 €
for Sale
Luqa - 3 Bed,2 Bath Finished 3rd Flr Apartment
327,500 €
Keep default settings X
Use of cookies
This site uses cookies. Our (own) cookies and those of our Partners (third party cookies) are used to offer you a unique experience with us. For this reason, together with our partners, we collect and process non-sensitive information (such as the identifier of your device or the pages you visit).
At any time you can delete, modify or verify the information you share in
Cookie preference
or in our
Cookie Policy
and
Privacy Policy
.
Necessary
Functional
Profiling
Analytics
Accept all
Decline all
Accept selected
Cookie preference