Toggle navigation
(+356) 2164 9500
(+356) 9998 6779
info@sensaramalta.com
Head Office - Sensara Malta
Triq Santa Marija, Safi
09.00 to 19.00 hrs
Monday to Saturday
Home
Properties
Sales
Rentals
Foreign
About us
Services
Contacts
Send your request
Previous
Next
410,000 €
CLICK HERE for DETAILED PHOTOS
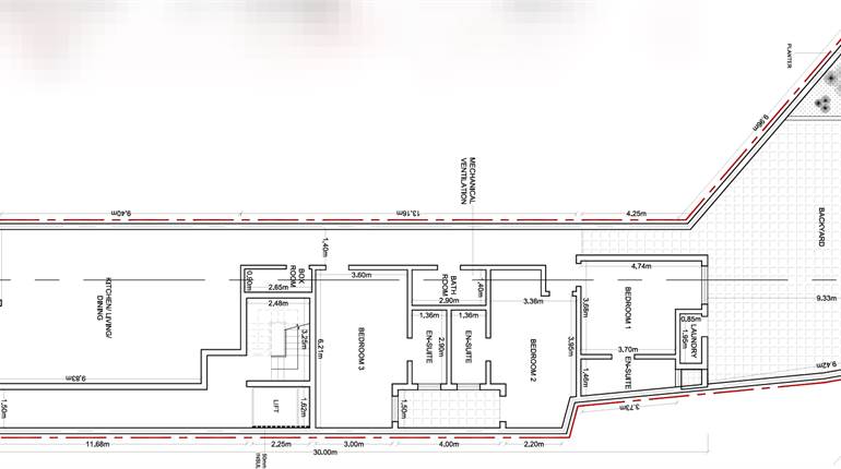
Xemxija/Veccja - 1st Floor 2 Bedroom Maisonette + Roof + Airspace
Maisonette for sale • San Pawl il-Bahar
Border with Xembija and Veccja comes a first floor, two bedroom Maisonette enjoying full roof and airspace.
A stirway leads to the kitchen/living/dining, bathroom, yard, and two double bedrooms. This property enjoys seaviews and ample natural light .
Freehold
Rooms and Features
Code
V022936
Locality
San Pawl il-Bahar
Property type
Maisonette
Price
410,000 €
Locals
1
Bedrooms
2
Bathrooms
1
Sqm
110
Energetic class
Not applicable
Photos • Floorplans • Video
Photos
Options
Print Property sheet
Send property sheet by mail
Schedule a visit
RealEstate Brokers
Cortis Marika
+356 9925 6579
+356 9998 6779
+356 9998 6775
cortis@sensaramalta.com
Information request
Name *
Phone *
E-mail *
Request Details *
I authorize the processing of my personal data according Regolamento UE n. 679/2016 -
Privacy Policy
I authorize the processing of data for marketing purposes, promotional activities, commercial offers and market surveys.
Send
Share on
We also recommend
for Sale
Iklin - 290sqm 3 Bedroom Fully Finished Elevated Maisonette + Yard + Street Level 2 Car Garage
605,000 €
for Sale
Tarxien - 3 Bedroom Maisonette + Roof + Airspace
502,000 €
for Sale
Zurrieq - 3 Bedroom Ground Floor Finished Maisonette On Plan
360,000 €
Keep default settings X
Use of cookies
This site uses cookies. Our (own) cookies and those of our Partners (third party cookies) are used to offer you a unique experience with us. For this reason, together with our partners, we collect and process non-sensitive information (such as the identifier of your device or the pages you visit).
At any time you can delete, modify or verify the information you share in
Cookie preference
or in our
Cookie Policy
and
Privacy Policy
.
Necessary
Functional
Profiling
Analytics
Accept all
Decline all
Accept selected
Cookie preference