Toggle navigation
(+356) 2164 9500
(+356) 9998 6779
info@sensaramalta.com
Head Office - Sensara Malta
Triq Santa Marija, Safi
09.00 to 19.00 hrs
Monday to Saturday
Home
Properties
Sales
Rentals
Foreign
About us
Services
Contacts
Send your request
Previous
Next
302,000 €
CLICK HERE for DETAILED PHOTOS
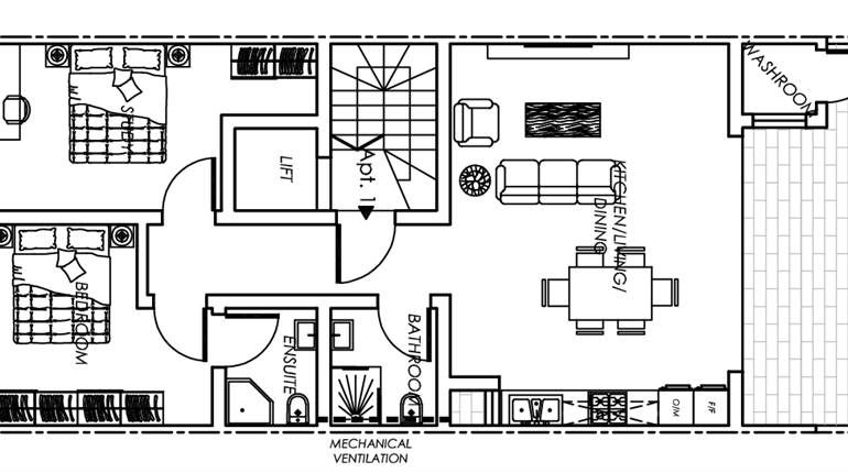
Msida - 2 Bedroom Second Floor Finished Apartment On Plan
2 bedroom apartment for sale • Msida
A brand new two-bedroom second floor apartment is currently available on plan.
It consists of an open-plan kitchen/dining/living area, a main bathroom, a double bedroom, and a spare bedroom, complemented by three balconies that surrounds the property.
It is being offered finished excluding bathrooms and doors.
Estimated completion is set for shell form by 2027 and full finish by 2028.
Optional car spaces are available at 45k.
This apartment enjoys a prime central location with strong rental demand, great for rental investment.
Rooms and Features
Code
V023330
Locality
Msida
Property type
2 bedroom apartment
Price
302,000 €
Locals
1
Bedrooms
2
Bathrooms
1
Sqm
55
Balconies
2
Floor
2
Energetic class
Not applicable
Property Conditions
Next Realization
Photos • Floorplans • Video
Photos
Options
Print Property sheet
Send property sheet by mail
Schedule a visit
RealEstate Brokers
Schembri Maria Pawla
+356 7732 8183
+356 9998 6779
+356 9998 6775
pawla@sensaramalta.com
Information request
Name *
Phone *
E-mail *
Request Details *
I authorize the processing of my personal data according Regolamento UE n. 679/2016 -
Privacy Policy
I authorize the processing of data for marketing purposes, promotional activities, commercial offers and market surveys.
Send
Share on
We also recommend
for Sale
Ta' Xbiex - 1st Floor 2 Bedroom Finished Apartment + Yard
350,000 €
for Sale
Safi - 2 Bedroom Apartment + Views
277,000 €
for Sale
2 bedroom apartment for sale in Sannat Gozo
358,500 €
Keep default settings X
Use of cookies
This site uses cookies. Our (own) cookies and those of our Partners (third party cookies) are used to offer you a unique experience with us. For this reason, together with our partners, we collect and process non-sensitive information (such as the identifier of your device or the pages you visit).
At any time you can delete, modify or verify the information you share in
Cookie preference
or in our
Cookie Policy
and
Privacy Policy
.
Necessary
Functional
Profiling
Analytics
Accept all
Decline all
Accept selected
Cookie preference