Toggle navigation
(+356) 2164 9500
(+356) 9998 6779
info@sensaramalta.com
Head Office - Sensara Malta
Triq Santa Marija, Safi
09.00 to 19.00 hrs
Monday to Saturday
Home
Properties
Sales
Rentals
Foreign
About us
Services
Contacts
Send your request
Previous
Next
495,000 €
CLICK HERE for DETAILED PHOTOS
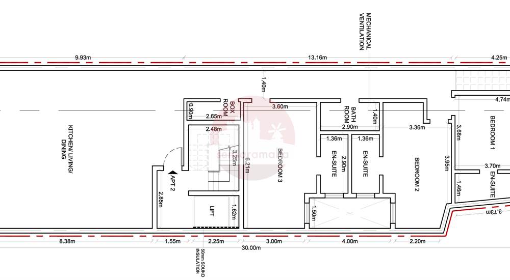
Iklin - 223sqm 3 Bedroom Fully Finished Apartment + Terrace + Optional Garage
3+ bedroom apartment for sale • Iklin
New and recently built in the heart of Iklin comes this hard to come by circa 223 sqm 3 bedroom apartment which is situated on the 2nd floor level in a residential block of only 4 units. All units are being offered fully finished including bathrooms and internal doors.
This comfortable layout consist in a large front open plan overlooking front terrace, box room, master bathroom, 3 double bedrooms all are served with ensuit , back large balcony with washroom .
Optional interconnected garages are also available.
Freehold .
Rooms and Features
Code
V023416
Locality
Iklin
Property type
3+ bedroom apartment
Price
495,000 €
Locals
1
Bedrooms
3
Bathrooms
4
Sqm
223
Terraces
2
Floor
2
Energetic class
Not applicable
Property Conditions
Under Construction
Photos • Floorplans • Video
Photos
Options
Print Property sheet
Send property sheet by mail
Schedule a visit
RealEstate Brokers
Schembri Maria Pawla
+356 7732 8183
+356 9998 6779
+356 9998 6775
pawla@sensaramalta.com
Information request
Name *
Phone *
E-mail *
Request Details *
I authorize the processing of my personal data according Regolamento UE n. 679/2016 -
Privacy Policy
I authorize the processing of data for marketing purposes, promotional activities, commercial offers and market surveys.
Send
Share on
We also recommend
for Sale
Zejtun - 3 DBL Bedrooms Apartment - Finished
374,000 €
for Sale
Mosta - Newly Built 3 Bedroom Apartment
360,000 €
for Sale
Zabbar - 3 Bedroom Fully Finished Corner Apartment
308,000 €
Keep default settings X
Use of cookies
This site uses cookies. Our (own) cookies and those of our Partners (third party cookies) are used to offer you a unique experience with us. For this reason, together with our partners, we collect and process non-sensitive information (such as the identifier of your device or the pages you visit).
At any time you can delete, modify or verify the information you share in
Cookie preference
or in our
Cookie Policy
and
Privacy Policy
.
Necessary
Functional
Profiling
Analytics
Accept all
Decline all
Accept selected
Cookie preference