Toggle navigation
(+356) 2164 9500
(+356) 9998 6779
info@sensaramalta.com
Head Office - Sensara Malta
Triq Santa Marija, Safi
09.00 to 19.00 hrs
Monday to Saturday
Home
Properties
Sales
Rentals
Foreign
About us
Services
Contacts
Send your request
Previous
Next
277,000 €
CLICK HERE for DETAILED PHOTOS
St Paul`s Bay - 2 Bedroom Finished Apartment
2 bedroom apartment for sale • San Pawl il-Bahar
This two bedroom finished third floor apartment is being sold on plan in St Paul's Bay.
It is under construction and it is estimated to be completed by end of 2025.
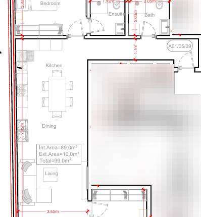
Featuring an open plan kitchen/dining/living with a front balcony, main bathroom, box room, master bedroom with ensuite and a second bedroom both with a balcony.
Optional garages are available at an extra price.
Being sold finished excl. bathrooms and doors and Freehold.
Rooms and Features
Code
V023441
Locality
San Pawl il-Bahar
Property type
2 bedroom apartment
Price
277,000 €
Locals
1
Bedrooms
2
Sqm
91
Balconies
3
Energetic class
Not applicable
Photos • Floorplans • Video
Photos
Options
Print Property sheet
Send property sheet by mail
Schedule a visit
RealEstate Brokers
Aguis Lorna
+356 9961 6121
+356 9998 6779
+356 2164 9500
lorna@sensaramalta.com
Information request
Name *
Phone *
E-mail *
Request Details *
I authorize the processing of my personal data according Regolamento UE n. 679/2016 -
Privacy Policy
I authorize the processing of data for marketing purposes, promotional activities, commercial offers and market surveys.
Send
Share on
We also recommend
for Sale
Swieqi - 1st Floor Fully Finished 2 Bedroom Apartment + Optional Garage
395,000 €
for Sale
Qormi - 1st Floor 2 Bedroom Apartment Finished + Terrace + Optional Garage
275,000 €
for Sale
Msida - 2 Bedroom First Floor Finished Apartment On Plan
313,000 €
Keep default settings X
Use of cookies
This site uses cookies. Our (own) cookies and those of our Partners (third party cookies) are used to offer you a unique experience with us. For this reason, together with our partners, we collect and process non-sensitive information (such as the identifier of your device or the pages you visit).
At any time you can delete, modify or verify the information you share in
Cookie preference
or in our
Cookie Policy
and
Privacy Policy
.
Necessary
Functional
Profiling
Analytics
Accept all
Decline all
Accept selected
Cookie preference