Toggle navigation
(+356) 2164 9500
(+356) 9998 6779
info@sensaramalta.com
Head Office - Sensara Malta
Triq Santa Marija, Safi
09.00 to 19.00 hrs
Monday to Saturday
Home
Properties
Sales
Rentals
Foreign
About us
Services
Contacts
Send your request
Previous
Next
308,000 €
CLICK HERE for DETAILED PHOTOS
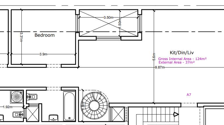
Fgura - 2 Bedroom Penthouse + Airspace - On Plan
Penthouse for sale • Fgura
On Plan - Fourth Floor Penthouse situated in a quiet area of Fgura. Will be offered Finished excl bathroom and internal doors. Enjoying a Large Terrace and its ownership of Airspace.
Layout consisting of a Kitchen/Living/Dining overlooking its Terrace, main bathroom, Master Bedroom and a study which can be used as a second bedroom. Both bedrooms enjoying the access to the back veranda.
Freehold
Rooms and Features
Code
V023486
Locality
Fgura
Property type
Penthouse
Price
308,000 €
Locals
1
Bedrooms
2
Bathrooms
1
Sqm
66
Balconies
1
Terraces
1
Energetic class
Nondescript
Photos • Floorplans • Video
Photos
Options
Print Property sheet
Send property sheet by mail
Schedule a visit
RealEstate Brokers
Jenkins Rita
+356 7712 7772
+356 9998 6779
+356 9998 6775
rita@sensaramalta.com
Information request
Name *
Phone *
E-mail *
Request Details *
I authorize the processing of my personal data according Regolamento UE n. 679/2016 -
Privacy Policy
I authorize the processing of data for marketing purposes, promotional activities, commercial offers and market surveys.
Send
Share on
We also recommend
for Sale
Burmarrad - Highly Fully Finished Penthouse + Pool
696,500 €
for Sale
Safi - 2 Bedroom Finished Penthouse
430,000 €
for Sale
Birzebbugia - 2 Bedroom Penthouse Shell Form + Airspace
272,000 €
Keep default settings X
Use of cookies
This site uses cookies. Our (own) cookies and those of our Partners (third party cookies) are used to offer you a unique experience with us. For this reason, together with our partners, we collect and process non-sensitive information (such as the identifier of your device or the pages you visit).
At any time you can delete, modify or verify the information you share in
Cookie preference
or in our
Cookie Policy
and
Privacy Policy
.
Necessary
Functional
Profiling
Analytics
Accept all
Decline all
Accept selected
Cookie preference