Toggle navigation
(+356) 2164 9500
(+356) 9998 6779
info@sensaramalta.com
Head Office - Sensara Malta
Triq Santa Marija, Safi
09.00 to 19.00 hrs
Monday to Saturday
Home
Properties
Sales
Rentals
Foreign
About us
Services
Contacts
Send your request
Previous
Next
340,000 €
CLICK HERE for DETAILED PHOTOS
Birkirkara - Circa 119sqm 1st Floor 3 Bedroom Apartment Finished + Optional Garages
3+ bedroom apartment for sale • Birkirkara
Set in a sought-after residential area, this brand-new development in Birkirkara just off Iklin which is currently under construction - consists of a ground floor maiosnette , 6 apartments and 2 penthouses .
All units are being sold finished excluding bathrooms and internal doors, while common parts will be delivered fully finished.
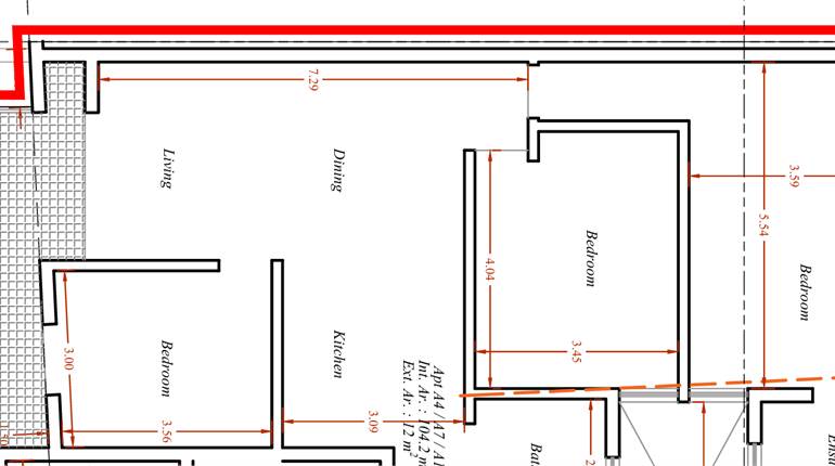
Each apartment enjoys a well-planned longish open-plan kitchen, living and dining area leading to front and back balconies, providing ample natural light throughout.
The layout includes spacious bedrooms, with the main bedroom featuring an ensuite and walk-in wardrobe, together with a main bathroom.
With a total internal area of approximately 108 sqm and an external area of 11 sqm, these apartments are ideal for both first-time buyers and investors looking for a smart, central property in Birkirkara, just off Iklin.
Project completion is targeted for end of May 2026.
Optional 2-car garages are available at €110,000.
Freehold .
Rooms and Features
Code
V023506
Locality
Birkirkara
Property type
3+ bedroom apartment
Price
340,000 €
Locals
1
Bedrooms
3
Bathrooms
3
Sqm
119
Balconies
1
Terraces
1
sqm Terrace
11
Floor
1
Energetic class
Not applicable
Property Conditions
Under Construction
Accessories:
Double Glazing
Photos • Floorplans • Video
Photos
Options
Print Property sheet
Send property sheet by mail
Schedule a visit
RealEstate Brokers
Schembri Maria Pawla
+356 7732 8183
+356 9998 6779
+356 9998 6775
pawla@sensaramalta.com
Information request
Name *
Phone *
E-mail *
Request Details *
I authorize the processing of my personal data according Regolamento UE n. 679/2016 -
Privacy Policy
I authorize the processing of data for marketing purposes, promotional activities, commercial offers and market surveys.
Send
Share on
We also recommend
for Sale
Iklin - Already Built 2 Bedroom Fully Finished Apartment at 3rd Floor + Terrace + Optional Garage
415,000 €
for Sale
Mosta - 3 Bedroom Finished Third Floor Apartment On Plan
395,000 €
for Sale
Swieqi - 3 Bedroom Luxurious Finished Apartment
640,000 €
Keep default settings X
Use of cookies
This site uses cookies. Our (own) cookies and those of our Partners (third party cookies) are used to offer you a unique experience with us. For this reason, together with our partners, we collect and process non-sensitive information (such as the identifier of your device or the pages you visit).
At any time you can delete, modify or verify the information you share in
Cookie preference
or in our
Cookie Policy
and
Privacy Policy
.
Necessary
Functional
Profiling
Analytics
Accept all
Decline all
Accept selected
Cookie preference