Toggle navigation
(+356) 2164 9500
(+356) 9998 6779
info@sensaramalta.com
Head Office - Sensara Malta
Triq Santa Marija, Safi
09.00 to 19.00 hrs
Monday to Saturday
Home
Properties
Sales
Rentals
Foreign
About us
Services
Contacts
Send your request
Previous
Next
575,000 €
CLICK HERE for DETAILED PHOTOS
Mosta - 3 Bedroom Finished Penthouse On Plan
Penthouse for sale • Mosta
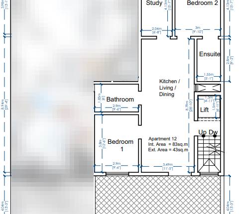
Located in a small block only four units, Three-bedroom Penthouse in Mosta, currently available on plan.
Consisting of an open-plan kitchen, dining, and living area with a front terrace, a main bathroom, a laundry/box room, and three double bedrooms, the master of which includes a private ensuite bathroom. This property is further complemented by a back balcony.
This property is being offered finished(excluding bathrooms and doors), and Energy efficient eligible for Green Home Loans.
Estimate to be completed by 2026.
Freehold
Rooms and Features
Code
V023520
Locality
Mosta
Property type
Penthouse
Price
575,000 €
Locals
1
Bedrooms
3
Bathrooms
2
Sqm
253
Balconies
2
Floor
4
Energetic class
Nondescript
Photos • Floorplans • Video
Photos
Options
Print Property sheet
Send property sheet by mail
Schedule a visit
RealEstate Brokers
Vella Ludric
+356 7909 1346
+356 9998 6779
+356 9998 6775
ludric@sensaramalta.com
Information request
Name *
Phone *
E-mail *
Request Details *
I authorize the processing of my personal data according Regolamento UE n. 679/2016 -
Privacy Policy
I authorize the processing of data for marketing purposes, promotional activities, commercial offers and market surveys.
Send
Share on
We also recommend
for Sale
Birzebbugia - 2 Bedroom Penthouse On Plan
360,000 €
for Sale
Birkirkara - 3 Bedroom Penthouse + Airspace
512,000 €
for Sale
San Pawl il-Bahar - 2 Bedroom + Study Finished Penthouse + Airspace
379,000 €
Keep default settings X
Use of cookies
This site uses cookies. Our (own) cookies and those of our Partners (third party cookies) are used to offer you a unique experience with us. For this reason, together with our partners, we collect and process non-sensitive information (such as the identifier of your device or the pages you visit).
At any time you can delete, modify or verify the information you share in
Cookie preference
or in our
Cookie Policy
and
Privacy Policy
.
Necessary
Functional
Profiling
Analytics
Accept all
Decline all
Accept selected
Cookie preference