Toggle navigation
(+356) 2164 9500
(+356) 9998 6779
info@sensaramalta.com
Head Office - Sensara Malta
Triq Santa Marija, Safi
09.00 to 19.00 hrs
Monday to Saturday
Home
Properties
Sales
Rentals
Foreign
About us
Services
Contacts
Send your request
Previous
Next
318,000 €
CLICK HERE for DETAILED PHOTOS
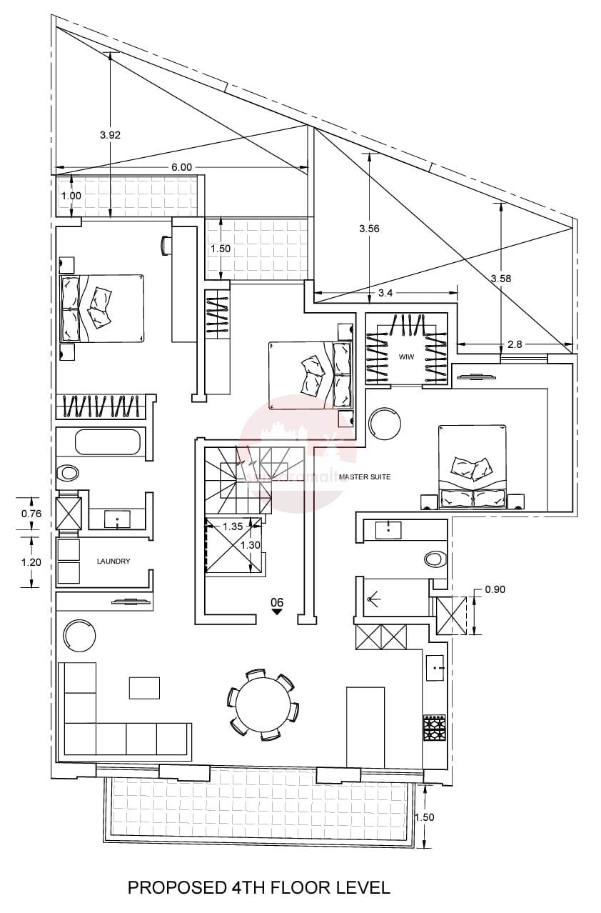
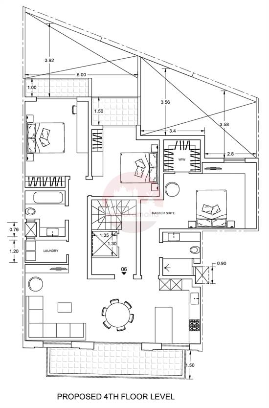
Marsascala - 4th floor 3 Bedroom Apartment Finished - On Plan
3+ bedroom apartment for sale • Marsascala
A brand-new residential block in a quiet yet central area of Marsascala, featuring a total of 8 units served with a new lift and modern common parts.
Each apartment enjoys a bright and spacious front open-plan layout complemented by comfortable outdoor spaces.
The construction is scheduled to start by the end of 2025.
Similar in layout to the 3rd floor apartment , this 4th -floor apartment offers the same spacious feel with a little extra outdoor space.
The open-plan kitchen, living, and dining area opens up to a front terrace, ideal for enjoying a morning coffee or an evening breeze.
At the back, there are two balconies instead of one, giving you even more room to enjoy the outdoors. With three double bedrooms, two bathrooms, and a laundry room, this apartment makes a wonderful choice for comfortable everyday living.
Freehold.
Rooms and Features
Code
V023567
Locality
Marsascala
Property type
3+ bedroom apartment
Price
318,000 €
Locals
1
Bedrooms
3
Bathrooms
2
Sqm
118
Balconies
3
Sqm balcon
12
Floor
4
Energetic class
Not applicable
Property Conditions
Under Construction
Photos • Floorplans • Video
Photos
Options
Print Property sheet
Send property sheet by mail
Schedule a visit
RealEstate Brokers
Schembri Maria Pawla
+356 7732 8183
+356 9998 6779
+356 9998 6775
pawla@sensaramalta.com
Information request
Name *
Phone *
E-mail *
Request Details *
I authorize the processing of my personal data according Regolamento UE n. 679/2016 -
Privacy Policy
I authorize the processing of data for marketing purposes, promotional activities, commercial offers and market surveys.
Send
Share on
We also recommend
for Sale
Qormi - 3 Bedroom Apartment On Plan
250,000 €
for Sale
Mellieha Ghadira - 3 Bedroom Apartment + Highly Finished
356,500 €
for Sale
Attard - 3 Bedroom Fully Finished Apartment
450,500 €
Keep default settings X
Use of cookies
This site uses cookies. Our (own) cookies and those of our Partners (third party cookies) are used to offer you a unique experience with us. For this reason, together with our partners, we collect and process non-sensitive information (such as the identifier of your device or the pages you visit).
At any time you can delete, modify or verify the information you share in
Cookie preference
or in our
Cookie Policy
and
Privacy Policy
.
Necessary
Functional
Profiling
Analytics
Accept all
Decline all
Accept selected
Cookie preference