Toggle navigation
(+356) 2164 9500
(+356) 9998 6779
info@sensaramalta.com
Head Office - Sensara Malta
Triq Santa Marija, Safi
09.00 to 19.00 hrs
Monday to Saturday
Home
Properties
Sales
Rentals
Foreign
About us
Services
Contacts
Send your request
Previous
Next
328,000 €
CLICK HERE for DETAILED PHOTOS
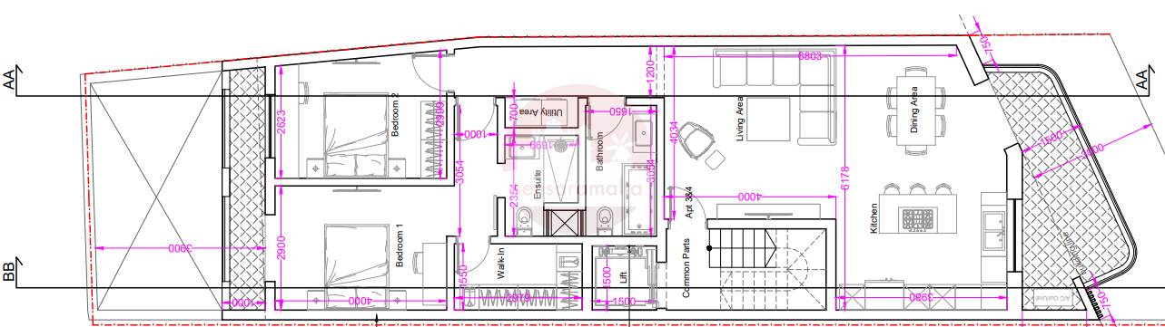
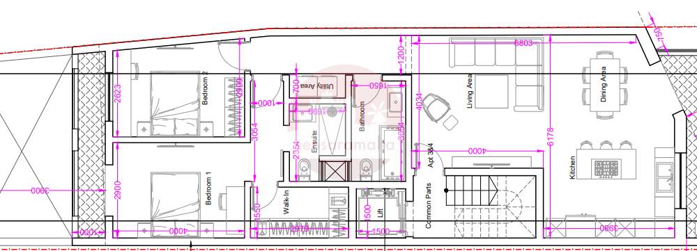
Birkirkara - 2 Bedroom 3rd floor Finished Apartment On Plan
2 bedroom apartment for sale • Birkirkara
Located in one of the most desirable areas of Birkirkara, two-bedroom finished third floor apartment, currently available on plan.
Consists of a spacious open plan kitchen/dining/living with a front terrace, laundry room, main bathroom and two double bedrooms with a balcony. The master bedroom includes a walk-in-wardrobe and an ensuite.
This apartment is still on plan and is estimate to be completed by 2027. It is being offered finished excluding bathrooms and internal doors. Optional two car garages are available at an extra price, starting from 80k.
Rooms and Features
Code
V023615
Locality
Birkirkara
Property type
2 bedroom apartment
Price
328,000 €
Locals
1
Bedrooms
2
Bathrooms
2
Sqm
115
Balconies
1
Terraces
1
Floor
3
Energetic class
Nondescript
Photos • Floorplans • Video
Photos
Options
Print Property sheet
Send property sheet by mail
Schedule a visit
RealEstate Brokers
Vella Ludric
+356 7909 1346
+356 9998 6779
+356 9998 6775
ludric@sensaramalta.com
Information request
Name *
Phone *
E-mail *
Request Details *
I authorize the processing of my personal data according Regolamento UE n. 679/2016 -
Privacy Policy
I authorize the processing of data for marketing purposes, promotional activities, commercial offers and market surveys.
Send
Share on
We also recommend
for Sale
St Pauls Bay - 2 Bedroom Apartment Highly Finished
358,500 €
for Sale
Fgura - 2 Bedroom First Floor Apartment On Plan
264,000 €
for Sale
Swieqi - 2nd Floor Fully Finished 2 Bedroom Apartment + Optional Garage
395,000 €
Keep default settings X
Use of cookies
This site uses cookies. Our (own) cookies and those of our Partners (third party cookies) are used to offer you a unique experience with us. For this reason, together with our partners, we collect and process non-sensitive information (such as the identifier of your device or the pages you visit).
At any time you can delete, modify or verify the information you share in
Cookie preference
or in our
Cookie Policy
and
Privacy Policy
.
Necessary
Functional
Profiling
Analytics
Accept all
Decline all
Accept selected
Cookie preference