Toggle navigation
(+356) 2164 9500
(+356) 9998 6779
info@sensaramalta.com
Head Office - Sensara Malta
Triq Santa Marija, Safi
09.00 to 19.00 hrs
Monday to Saturday
Home
Properties
Sales
Rentals
Foreign
About us
Services
Contacts
Send your request
Previous
Next
420,000 €
CLICK HERE for DETAILED PHOTOS
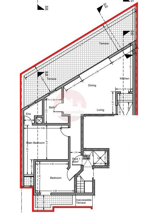
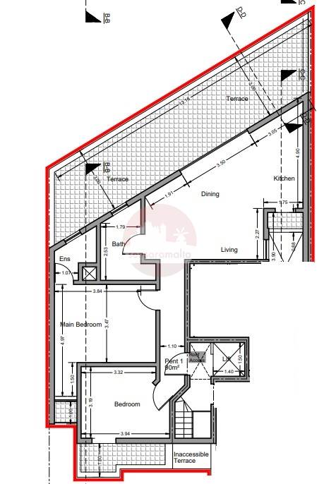
San Gwann - 2 Bedroom Finished Penthouse On Plan
Penthouse for sale • San Gwann
Located in San Gwann, two-bedroom finished penthouse, currently under construction.
This Penthouse consists of an open plan kitchen/dining/living with a spacious front terrace, main bathroom, two double bedrooms, both of them with a balcony and the master bedroom also includes an ensuite bathroom.
This property is currently under construction and is being offered finished excluding bathrooms and internal doors.
Rooms and Features
Code
V023630
Locality
San Gwann
Property type
Penthouse
Price
420,000 €
Locals
1
Bedrooms
2
Bathrooms
2
Sqm
137
Balconies
2
Terraces
1
Floor
4
Energetic class
Nondescript
Photos • Floorplans • Video
Photos
Options
Print Property sheet
Send property sheet by mail
Schedule a visit
RealEstate Brokers
Kitney Claudia
+356 9940 4319
+356 9998 6779
+356 9998 6775
claudia@sensaramalta.com
Information request
Name *
Phone *
E-mail *
Request Details *
I authorize the processing of my personal data according Regolamento UE n. 679/2016 -
Privacy Policy
I authorize the processing of data for marketing purposes, promotional activities, commercial offers and market surveys.
Send
Share on
We also recommend
for Sale
Rabat - 3 Bedroom Finished Luxurious Penthouse + Pool + Terrace + Views
1,250,000 €
for Sale
Marsaxlokk - 1 Bedroom Finished Penthouse + Pool On Plan
375,945 €
for Sale
Qormi - 3 Bedroom Finished Penthouse + Terrace
358,500 €
Keep default settings X
Use of cookies
This site uses cookies. Our (own) cookies and those of our Partners (third party cookies) are used to offer you a unique experience with us. For this reason, together with our partners, we collect and process non-sensitive information (such as the identifier of your device or the pages you visit).
At any time you can delete, modify or verify the information you share in
Cookie preference
or in our
Cookie Policy
and
Privacy Policy
.
Necessary
Functional
Profiling
Analytics
Accept all
Decline all
Accept selected
Cookie preference