Toggle navigation
(+356) 2164 9500
(+356) 9998 6779
info@sensaramalta.com
Head Office - Sensara Malta
Triq Santa Marija, Safi
09.00 to 19.00 hrs
Monday to Saturday
Home
Properties
Sales
Rentals
Foreign
About us
Services
Contacts
Send your request
Previous
Next
502,000 €
CLICK HERE for DETAILED PHOTOS
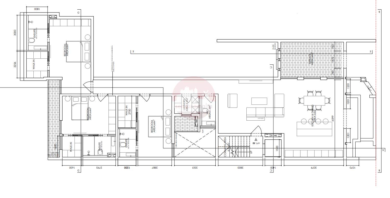
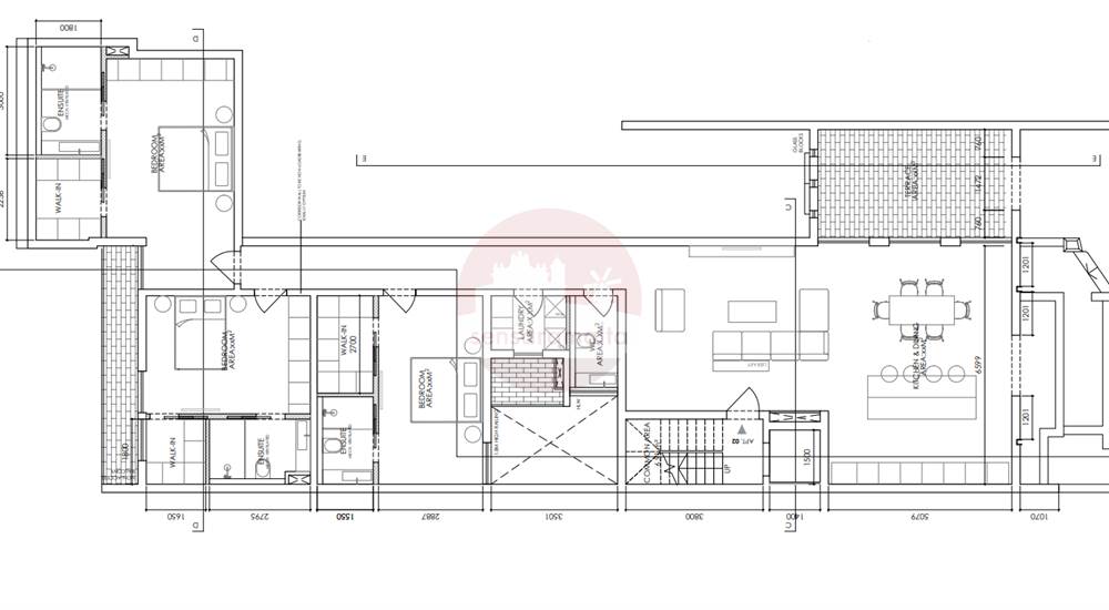
Balzan - 3 Bedroom Finished 2nd Floor Apartment Under Construction
3+ bedroom apartment for sale • Balzan
Located on the second floor, three-bedroom larger than usual apartment with a unique layout in Balzan, currently under construction.
Consists of a spacious open plan kitchen/dining/living with a front terrace, main bathroom, laundry room, and three double bedrooms all of them with a walk-in-wardrobe and an ensuite bathroom.
This property is currently under construction and is being offered finished excluding bathrooms and internal doors.
Rooms and Features
Code
V023634
Locality
Balzan
Property type
3+ bedroom apartment
Price
502,000 €
Locals
1
Bedrooms
3
Bathrooms
4
Sqm
198
Balconies
1
Terraces
1
Floor
2
Energetic class
Nondescript
Photos • Floorplans • Video
Photos
Options
Print Property sheet
Send property sheet by mail
Schedule a visit
RealEstate Brokers
Caruana Dylan
+356 9960 6829
+356 9998 6779
+356 2164 9500
dylan@sensaramalta.com
Information request
Name *
Phone *
E-mail *
Request Details *
I authorize the processing of my personal data according Regolamento UE n. 679/2016 -
Privacy Policy
I authorize the processing of data for marketing purposes, promotional activities, commercial offers and market surveys.
Send
Share on
We also recommend
for Sale
Mosta - Newly Built 3 Bedroom Apartment
360,000 €
for Sale
Burmarrad - 3 Bedroom Fully Finished Apartment
430,000 €
for Sale
Mosta, Already Built ** Finished 3 Bedroom Apartment with terrace & balcony ** optional Garages
394,000 €
Keep default settings X
Use of cookies
This site uses cookies. Our (own) cookies and those of our Partners (third party cookies) are used to offer you a unique experience with us. For this reason, together with our partners, we collect and process non-sensitive information (such as the identifier of your device or the pages you visit).
At any time you can delete, modify or verify the information you share in
Cookie preference
or in our
Cookie Policy
and
Privacy Policy
.
Necessary
Functional
Profiling
Analytics
Accept all
Decline all
Accept selected
Cookie preference