Toggle navigation
(+356) 2164 9500
(+356) 9998 6779
info@sensaramalta.com
Head Office - Sensara Malta
Triq Santa Marija, Safi
09.00 to 19.00 hrs
Monday to Saturday
Home
Properties
Sales
Rentals
Foreign
About us
Services
Contacts
Send your request
Previous
Next
315,000 €
CLICK HERE for DETAILED PHOTOS
Gudja - 2 Bedroom 2nd Floor Finished Apartment On Plan
2 bedroom apartment for sale • Gudja
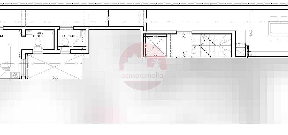
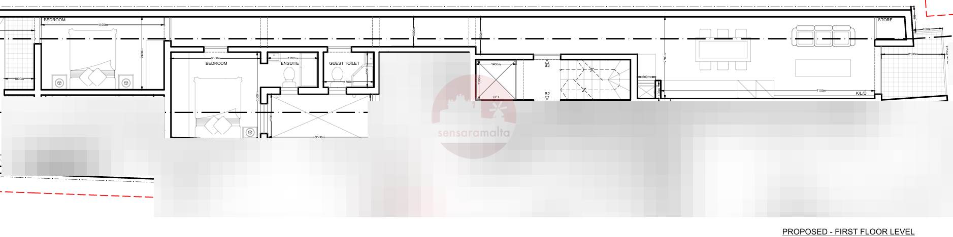
Located on the second floor, two-bedroom finished Apartment, currently available on plan in Gudja.
The layout consists of an open plan kitchen/dining/living with a front terrace, main bathroom and two double bedrooms. The master bedroom includes an ensuite and the second bedroom includes a balcony.
This property is still on plan and is estimate to be completed by 2027, it is being offered finished excluding bathrooms and internal doors.
Rooms and Features
Code
V023655
Locality
Gudja
Property type
2 bedroom apartment
Price
315,000 €
Locals
1
Bedrooms
2
Bathrooms
2
Sqm
87
Balconies
1
Terraces
1
Floor
2
Energetic class
Not applicable
Property Conditions
New
Accessories:
Double Glazing
Photos • Floorplans • Video
Photos
Options
Print Property sheet
Send property sheet by mail
Schedule a visit
RealEstate Brokers
Schembri Maria Pawla
+356 7732 8183
+356 9998 6779
+356 9998 6775
pawla@sensaramalta.com
Information request
Name *
Phone *
E-mail *
Request Details *
I authorize the processing of my personal data according Regolamento UE n. 679/2016 -
Privacy Policy
I authorize the processing of data for marketing purposes, promotional activities, commercial offers and market surveys.
Send
Share on
We also recommend
for Sale
Fgura - 2 Bedroom Finished Apartment On Plan
307,000 €
for Sale
Hal-Safi - 2 Bed Finished Third Floor Apt On Plan
307,000 €
for Sale
Pieta Under Construction 2nd floor 2 Bedroom Apartment Fully finished
300,000 €
Keep default settings X
Use of cookies
This site uses cookies. Our (own) cookies and those of our Partners (third party cookies) are used to offer you a unique experience with us. For this reason, together with our partners, we collect and process non-sensitive information (such as the identifier of your device or the pages you visit).
At any time you can delete, modify or verify the information you share in
Cookie preference
or in our
Cookie Policy
and
Privacy Policy
.
Necessary
Functional
Profiling
Analytics
Accept all
Decline all
Accept selected
Cookie preference