Toggle navigation
(+356) 2164 9500
(+356) 9998 6779
info@sensaramalta.com
Head Office - Sensara Malta
Triq Santa Marija, Safi
09.00 to 19.00 hrs
Monday to Saturday
Home
Properties
Sales
Rentals
Foreign
About us
Services
Contacts
Send your request
Previous
Next
322,500 €
CLICK HERE for DETAILED PHOTOS
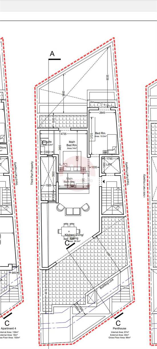
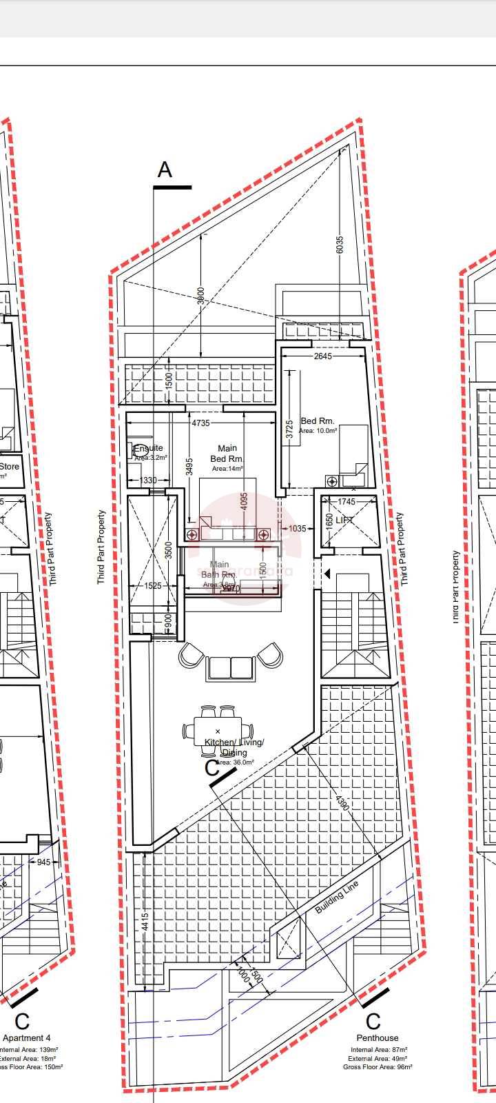
Qormi-On Plan 2 bedroom Penthouse + Opt Garage
Penthouse for sale • Qormi
In Qormi(San Bastjan Area) comes this New Development of Maisonette/Apartments and Penthouse. ON Plan finds 2 Bedroom Penthouse block of only 4.
Consist of kitchen/living/dining with terrace , main bathroom, 2 double bedrooms one of them with en suite and back balcony. Optional Garages available. Being sold finished except internal doors and bathrooms.
Completion Date by December-2024
Rooms and Features
Code
V018234
Locality
Qormi
Property type
Penthouse
Price
322,500 €
Locals
1
Bathrooms
2
Sqm
96
Terraces
2
Floor
4
Energetic class
Nondescript
Photos • Floorplans • Video
Photos
Options
Print Property sheet
Send property sheet by mail
Schedule a visit
RealEstate Brokers
Cortis Marika
+356 9925 6579
+356 9998 6779
+356 9998 6775
cortis@sensaramalta.com
Information request
Name *
Phone *
E-mail *
Request Details *
I authorize the processing of my personal data according Regolamento UE n. 679/2016 -
Privacy Policy
I authorize the processing of data for marketing purposes, promotional activities, commercial offers and market surveys.
Send
Share on
We also recommend
for Sale
St Venera - 1 Bedroom Ready Built Finished Penthouse
275,000 €
for Sale
Siggiewi - Luxury 3 Bedroom Penthouse With Pool
1,229,000 €
for Sale
Mosta - 3 Bedroom Finished Penthouse On Plan
575,000 €
Keep default settings X
Use of cookies
This site uses cookies. Our (own) cookies and those of our Partners (third party cookies) are used to offer you a unique experience with us. For this reason, together with our partners, we collect and process non-sensitive information (such as the identifier of your device or the pages you visit).
At any time you can delete, modify or verify the information you share in
Cookie preference
or in our
Cookie Policy
and
Privacy Policy
.
Necessary
Functional
Profiling
Analytics
Accept all
Decline all
Accept selected
Cookie preference